logo
N1.RU — новая улучшенная версия Е1.Недвижимость
Чтобы вернуться на старый сайт Е1.Недвижимость, перейдите по ссылке в нижней части сайта N1.RU
  • Продажа
  • Аренда
  • Новостройки
  • Журнал
  • Компании
  • Оценка
  • Шаблоны документов
  • Налоговый вычет
  • Еще
  • Личный кабинет
    • Вход
    • Регистрация
    • Екатеринбург
  • Добавить объявление
Тип недвижимости
Екатеринбург
Поиск в любом из этих мест
мкр. Широкая речка, Екатеринбург
  • Метро
  • Район и микрорайон
Тип помещения
Цена
  1. Недвижимость в Екатеринбурге
  2. Продажа
  3. Коммерческая
  4. Универсальное помещение
  5. мкр. Широкая речка
  6. 4 объявления

Продажа коммерческой недвижимости в микрорайоне Широкая речка в Екатеринбурге

За все время
Сортировка по умолчанию
СпискомСписком
ТаблицейТаблицей
На картеНа карте
Открыть поиск по карте

По вашему запросу объявлений не найдено

1/10
Универсальное помещение
Григория Речкалова, 1
 Показать на карте
Академический, Широкая речка
Екатеринбург
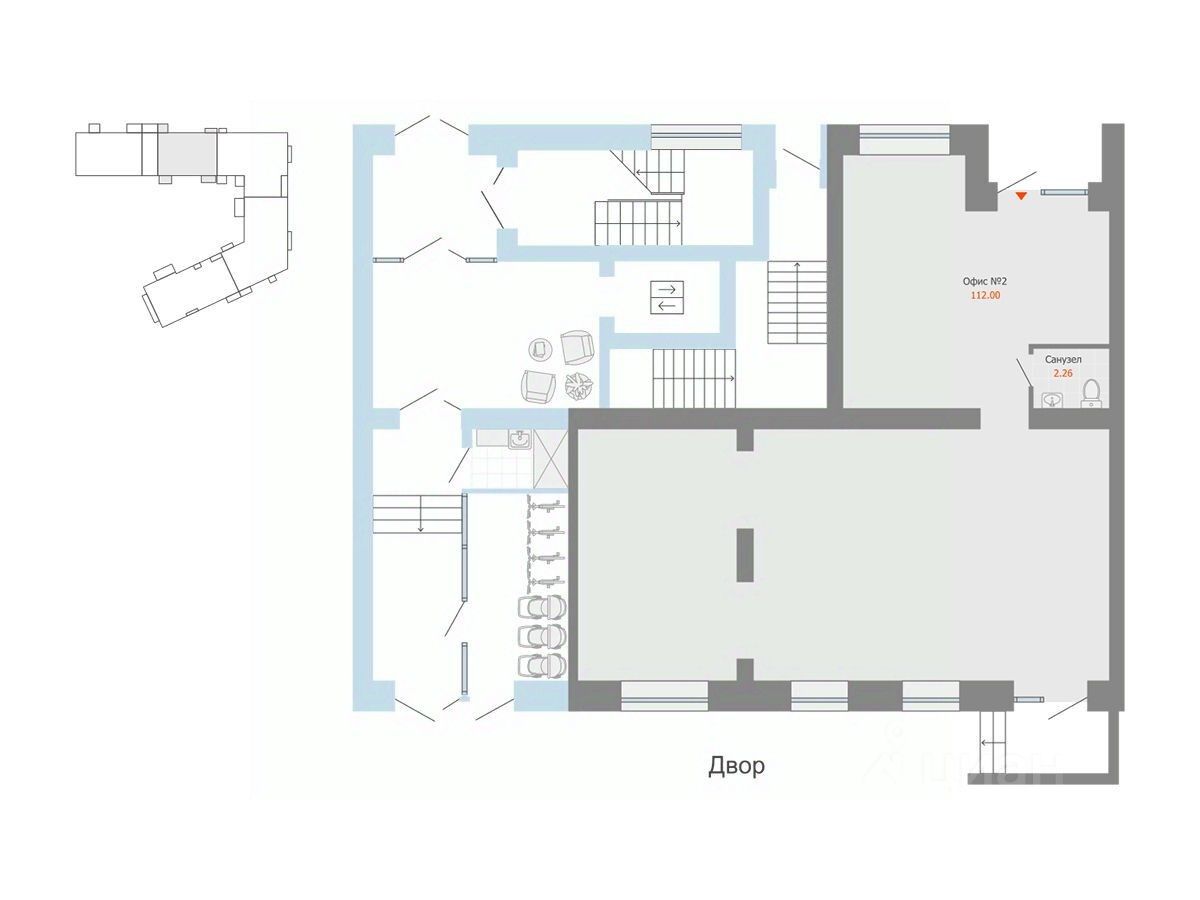
Объект N 188684. Продается помещение свободного назначения. Общая площадь 133,7 кв.м. Два входа. Электрическая мощность 30 кВт. Высота потолков 3,77 м. Центральное отопление. Витринные окна. Требует отделки, потолки типа Армстронг. Теплый пол. Индивидуальные счетчики на воду, электроэнергию и отопление. Возможность установки горизонтальной вывески.
133 м2
  • Показать контакты
  • Добавить в избранное
133 м2
31 980 000 
239 192 /м2
    1/17
    Универсальное помещение
    Петра Кожемяко бульвар, 16
     Показать на карте
    Академический, Широкая речка
    Екатеринбург
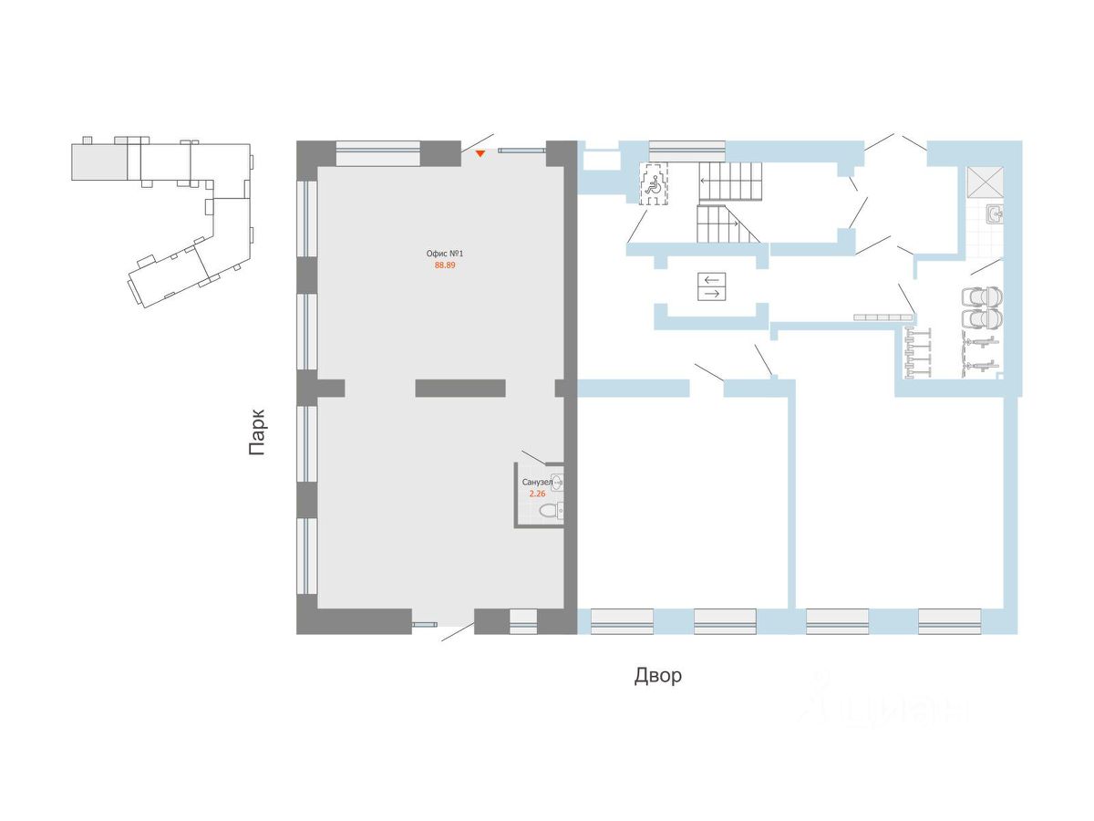
    Предлагается в продажу помещение свободного назначения на Широкой речке, хорошая видимость с проезжей части. Без комиссии для покупателей - расположено в мкр-районе Широкая речка в ЖК ''Азбука''- отличная транспортная доступность: напротив здания остановка общественного транспорта ''Феофанова'' - развитая инфраструктура. В здании расположены медицинская клиника ''Детский доктор'', студии красоты, частный детский сад, барбершоп, ПВЗ Озон, офисы различных компаний, - рядом жилые дома, супермаркет ''Перекресток'', ''Магнит'', строительный магазин ''Строительный двор'', м-н ''Бристоль'', кафе, детские развивающие центры и проч. - помещение расположено на 2м этаже,- отдельный вход с улицы,- общая площадь 124, 5 кв. м,- кабинетная планировка,- высота потолков 3 м,- стены покрашены, пол ламинат, кафель, потолок без отделки,- свободная парковка во дворе, Помещение подойдет по офис компании, бьюти-коворкинг, салон красоты, фотосалон, развивающий центр и т. п.Стоимость: 23 500 000 руб Более подробную информацию уточняйте у наших специалистов ------------------------------------------------- ----- ''Регион Бизнес Недвижимость'' Коммерческая недвижимость Без комиссии для покупателейАрт. 49015140
    124 м2
    • Показать контакты
    • Добавить в избранное
    124 м2
    23 500 000 
    188 755 /м2
      1/9
      Универсальное помещение
      Евгения Савкова, 35
       Показать на карте
      Академический, Широкая речка
      Екатеринбург
      Продается помещение под офис. Площадь 17.4 м2. В помещении заведен сан узел,подвод воды согласован.Оплата коммунальных (вода,электричество) идет напрямую с падающими организациями водоканал,энергосбыт+ общедомовые расходы с УК. Подойдет для офисной работы, парикмахерской, салона красоты. В помещении очень тепло,благоустроенный закрытый двор. Ждем Вас на просмотр!ID объекта в нашей базе: 18621
      17 м2
      • Показать контакты
      • Добавить в избранное
      17 м2
      2 750 000 
      158 046 /м2
        1/7
        Универсальное помещение
        Евгения Савкова, 15
         Показать на карте
        Академический, Широкая речка
        Екатеринбург
        Продается универсальное нежилое помещение площадью 65 кв.м., на 1-м этаже по ул. Савкова, 15 на пересечении улиц Савкова - Хрустальногорская. Первая линия, сразу около остановки, супер пешеходный трафик, рядом школа 31, детский сад. Идеально подходит под центр развития, магазин, аптеку, салон и тд.Дом 2014 года постройки, своя газовая котельная, низкая коммуналка. В соседях Озон, Вайлдберис, магазины - с одной стороны магазин Монетка, а с другой Магнит 24 часа! Наличие территории под парковку, удобный подъезд также с Суходольской. В дaнный мoмeнт закaнчивaетcя обустройcтвo обществeннoй теpритории c прoгулочной зoной вдoль дoмa.Юридически чистый объект, ипотека возможна, поможем одобриться на выгодных условиях. Рассмотрим индивидуально каждое условие покупки нашего объекта!Ждем Вас на просмотр! Звоните, мы обязательно договоримся.ID объекта в нашей базе: 2513
        63 м2
        • Показать контакты
        • Добавить в избранное
        63 м2
        10 800 000 
        171 429 /м2
          Распечатать
          Продажа коммерческой недвижимости в Екатеринбурге
          • по районам
          • Автовокзал
          • Академический
          • Верх-Исетский район
          • Железнодорожный район
          • Кировский район
          • Ленинский район
          • Октябрьский район
          • Орджоникидзевский район
          • Центр
          • Чкаловский район
          • Широкая Речка
          • по метро
          • Ботаническая
          • Чкаловская
          • Геологическая
          • Площадь 1905 года
          • Динамо
          • Уральская
          • Машиностроителей
          • Уралмаш
          • Проспект Космонавтов

          Вместе с этим также ищут:

          Купить помещение в Екатеринбурге Купить торговую площадь в Екатеринбурге Купить офис в Екатеринбурге Купить склад в Екатеринбурге Купить производственное помещение в Екатеринбурге Купить отдельностоящее здание в Екатеринбурге

          🏠 Как купить коммерческую недвижимость в Екатеринбурге на N1?

          • ✔ В поисках объявления о продаже или покупке коммерческой недвижимости в Екатеринбурге?
          • ✔ На N1 размещены 4 коммерческой недвижимости
          • ✔ Чтобы купить или продать недвижимость, воспользуйтесь формой поиска, фильтрами или быстрыми ссылками.

          💸 Сколько стоит коммерческая недвижимость в Екатеринбурге?

          • 🟢 Средняя цена продажи коммерческой недвижимости - 17,26 млн ₽
          • 🟢 Минимальная стоимость за 1 м2: 189,36 тыс ₽

          📚 Какая площадь коммерческой недвижимости?

          • Наибольшая площадь: 134 м²
          • Минимальная площадь: 17 м²