Универсальное помещение
Профессионалов, 7 Показать на карте
Профессионалов, 7 Показать на карте
Чкаловский район
Екатеринбург
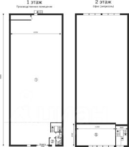
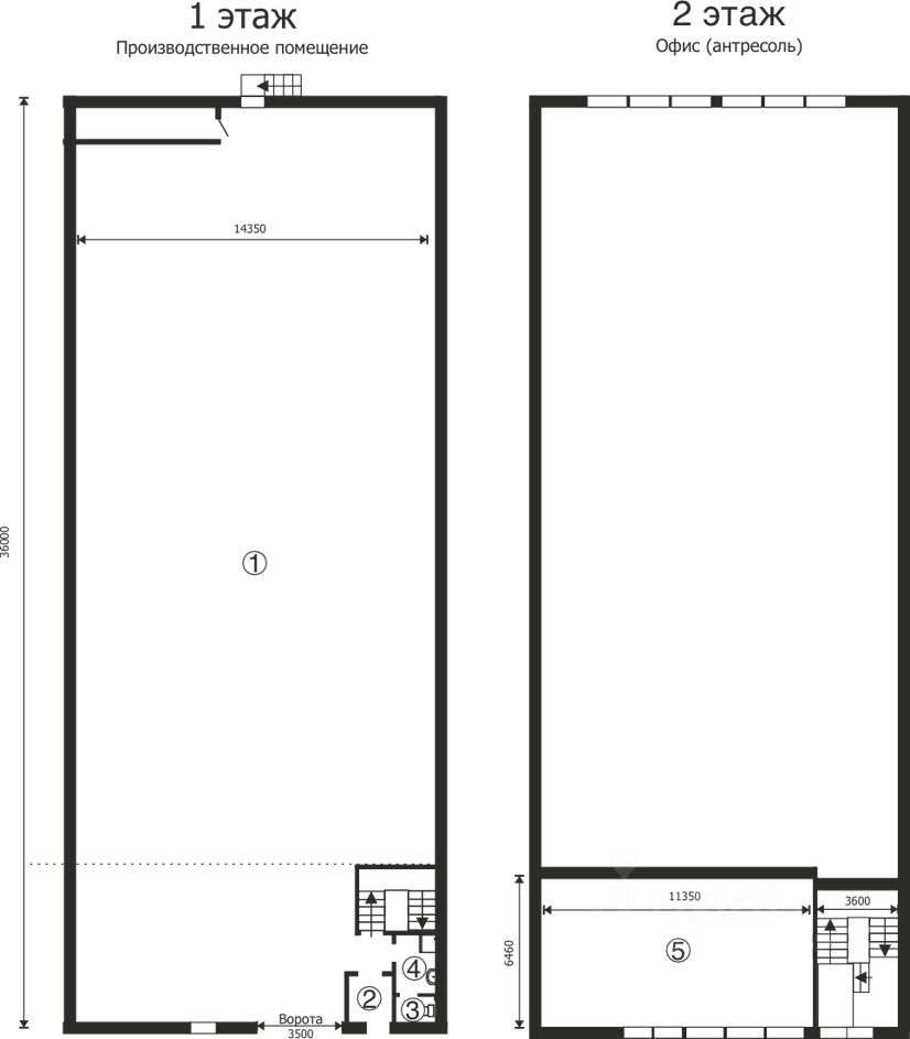
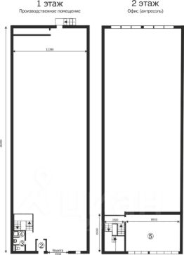
Продается современное производственно-складское помещение формата Light Industrial площадью 750 м² в составе комплекса ЕКАД Южный. Идеально для вашего производства или склада:Свободная планировка. Максимум возможностей для организации пространства под ваши задачи.Высота потолков 7 м (до низа фермы). Простор для оборудования, стеллажей и техники.Готовность под кран-балку. Конструктив рассчитан на установку.Прочный бетонный пол с топингом (обеспыливающее покрытие). Комплекс с выгодной локацией:Расположен на собственном земельном участке 3,6 га в составе комплекса.Удобный выезд на ЕКАД отличная транспортная доступность.Удаленность от центра Екатеринбурга: 35 минут.Благоустроенная территория: асфальтированные подъезды, парковка. Полный комплект коммуникаций:Электроснабжение: от 50 кВт ( Есть возможность увеличения мощности)Отопление: от единой газовой котельной.Водоснабжение: Индивидуальное.Водоотведение: Центральное. Безопасность и охрана:Круглосуточная охрана: КПП, шлагбаумы, 3D-забор по периметру.Видеонаблюдение на всей территории.Пожарная безопасность: степень огнестойкости IV, ПС с оповещением, резервное аварийное освещение. Почему именно ЕКАД Южный?Экономия времени и денег: все коммуникации подведены, разрешения согласованы начинайте работу быстро.Безопасность и контроль: спокойствие за имущество и сотрудников 24/7.Престиж и имидж: современные здания в охраняемом парке, управляющая компания, размещение среди статусных резидентов.Гибкость: объединяйте секции под ваши задачи.Резервы мощности: электричество, высота потолков есть запас для роста. Кому подойдет?Производственным предприятиям (металлообработка, сборка, легкая промышленность и т.д.)Логистическим и складским операторамОптовым компаниям, требующим качественных площадейСервисным центрам и дистрибьюции
750 м2
- Показать контакты
- Добавить в избранное
750 м2
67 500 000
90 000 /м2
