Офисное помещение
Сибирский тракт, 12 ст7 Показать на карте
Сибирский тракт, 12 ст7 Показать на карте
Октябрьский район, Шарташский рынок
Екатеринбург
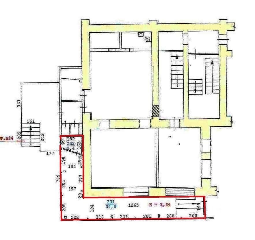
Арт. 134531602 Офисное помещение в бзнес парке площадью- 206,5 м2. Планировка кабинетная семь кабинетов, на 1-м этаже и зоной разгрузки. Стоимость 1500 руб./м2. + НДС. В ставку включены все коммунальные услуги и эксплуатационные расходы, кроме электроэнергии. В помещении выполнена отделка: Потолок подвесной тип ''Армстронг'' Стены: обои под покраску Пол: керамогранит Окна пластиковые с функцией проветривания. Установлен кондиционер. Отопление в зимний период Установлена охранная сигнализация Смонтированы розетки СКС и 220Вт. Отдельный санузел.
206 м2
- Показать контакты
- Добавить в избранное
206 м2
309 000 /мес.
1 500 /м2
