Офисное помещение
Владимира Высоцкого, 42 корп. 2 Показать на карте
Владимира Высоцкого, 42 корп. 2 Показать на карте
Кировский район, ЖБИ
Екатеринбург
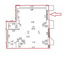
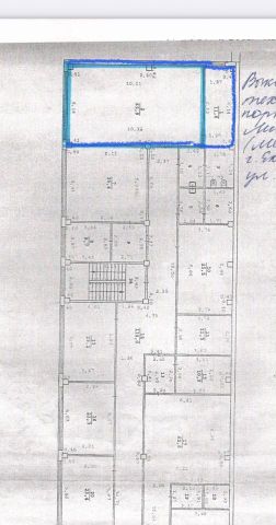
СДАЕТСЯ В АРЕНДУ ОФИСНОЕ ПОМЕЩЕНИЕ общей площадью 70 кв. м. Без комиссии для арендаторов.РАСПОЛОЖЕНИЕ И ИНФРАСТРУКТУРА:- Расположено в Кировском районе города, в микрорайоне ЖБИ, в квадрате 2-х его главных улиц - Владимира Высоцкого и ул. 40-летия Комсомола с высоким автомобильным трафиком- Рядом с офисным зданием с одной стороны дороги расположены жилые кварталы, а с другой большая зона складских помещений, а также транспортные развязки на объездные городские дороги, кольцевую дорогу и главные городские улицы.ОСНОВНЫЕ ХАРАКТЕРИСТИКИ ПОМЕЩЕНИЯ:- помещения находятся на 2-ом этаже с общим входом- общая площадь здания 1879, 6 кв. м.- планировка смешанная- состояние помещений: выполнен хороший ремонт, с возможностью перепланировки и ремонта под арендатора- вентиляция приточно-вытяжная - парковка закрытая на улице, количество около 25-ти м/м- хороший автомобильный трафик.НАЗНАЧЕНИЕ: Сдаваемые офисные помещения подойдут для организаций с необходимостью разместить сотрудников и/или организовать выставочный зал.СТОИМОСТЬ: Стоимость аренды: 66. 500 рублей в месяц за кв. м.Коммунальные платежи и эксплуатационные расходы включены в стоимость аренды. ------------------------------------------------- -----Более подробную информацию уточняйте у наших менеджеров------------------------------------------------- -----АН ''Партнер Инвест''Коммерческая недвижимостьБез комиссии для арендатора
70 м2
- Показать контакты
- Добавить в избранное
70 м2
66 500 /мес.
950 /м2
