Универсальное помещение
Советская, 102 Показать на карте
Советская, 102 Показать на карте
Карпинск
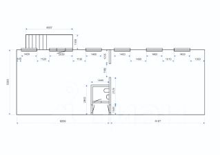
Данные получены с сайта ГИС Торги.Нежилое помещение, расположено на 1-м этаже жилого дома с кадастровым номером 66:47:0403002:258. Год постройки здания, в котором расположено помещение - 1960. Материал стен шлакоблоки, фундамент бутовый ленточный, перекрытия чердачные - дощатое. Материал перегородок и полов дощатые. Холодное водоснабжение, отопление центральное, электроснабжение в наличии. Состояние удовлетворительное. Помещение долгое время не использовалось, требуется проведение ремонтных работ. Нежилое помещение находится на земельном участке с кадастровым номером 66:47:0403002:78, площадью 681 кв.м., расположенном по адресу: Свердловская область, г. Карпинск, ул. Советская, д. 102, категория земель земли населенных пунктов, вид разрешенного использования под промышленный объект.
21 м2
- Показать контакты
- Добавить в избранное
21 м2
480 000
22 642 /м2
