Продается современное производственно-складское помещение формата Light Industrial площадью 600 м² в составе комплекса ЕКАД Южный.
Готовое решение для вашего бизнеса с продуманной инфраструктурой и коммуникациями под ключ.
Ключевые преимущества и характеристики:
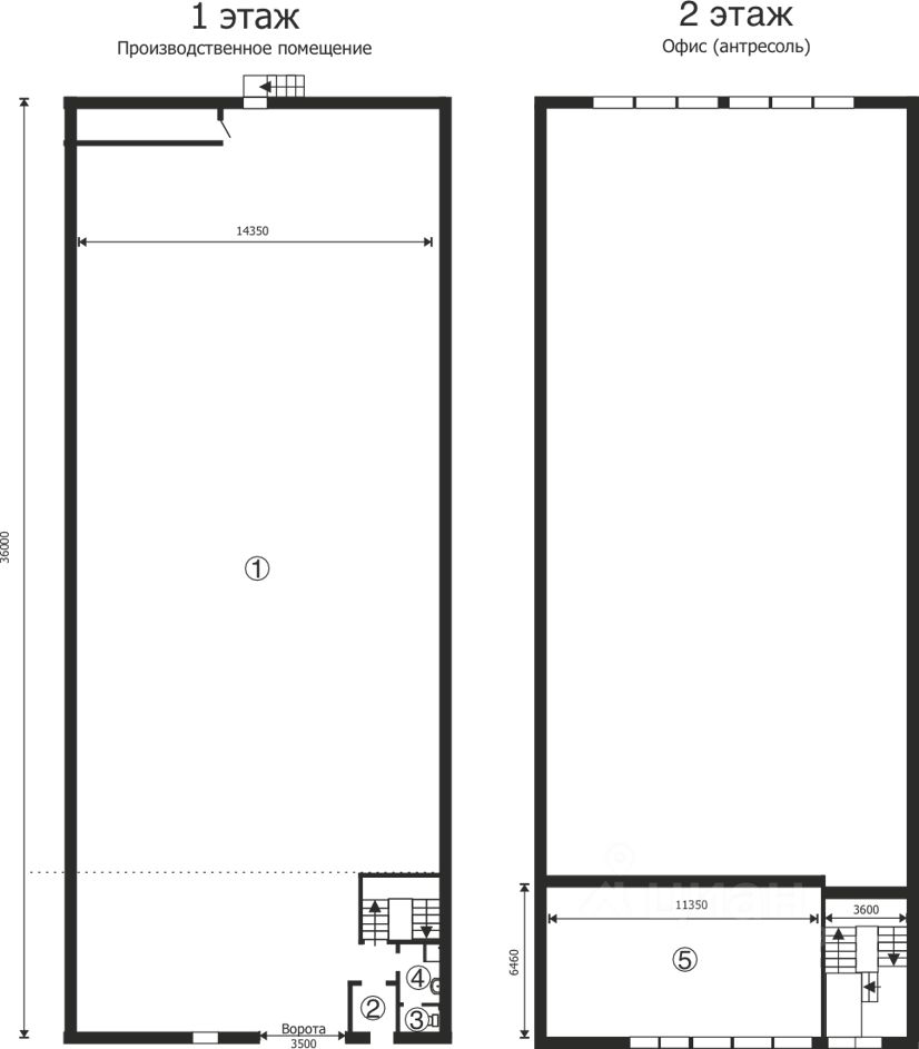
Отличная локация: всего 30 минут до центра Екатеринбурга. Удобный подъезд с ул. Профессионалов. Гибкие площади: помещения с возможностью объединения секций. Высота до низа ферм: 7.2 м идеально для высоких стеллажей и свободной организации пространства. Антресоль под офисы: готовая антресоль с отметкой пола +4.05м (ж/б перекрытие) в каждой секции. Вы можете сразу разместить администрацию или офис.
Продается современное производственно-складское помещение формата Light Industrial площадью 600 м² в составе комплекса ЕКАД Южный.
Готовое решение для вашего бизнеса с продуманной инфраструктурой и коммуникациями под ключ.
Ключевые преимущества и характеристики:
Отличная локация: всего 30 минут до центра Екатеринбурга. Удобный подъезд с ул. Профессионалов. Гибкие площади: помещения с возможностью объединения секций. Высота до низа ферм: 7.2 м идеально для высоких стеллажей и свободной организации пространства. Антресоль под офисы: готовая антресоль с отметкой пола +4.05м (ж/б перекрытие) в каждой секции. Вы можете сразу разместить администрацию или офис. Коммуникации полный комплект и резервы:
Электричество: 35 кВт на блок (с возможностью увеличения). Теплоснабжение: центральное водяное. Водоснабжение: холодная и горячая вода к санузлам. Канализация: бытовые стоки накопитель 50 м. Ливневка современная система с очисткой. Интернет: оптоволокно.
Безопасность и охрана спокойствие для бизнеса:
Круглосуточная охрана: КПП, шлагбаумы, 3D-забор по периметру. Видеонаблюдение на всей территории. Пожарная безопасность: степень огнестойкости IV, ПС с оповещением, резервное аварийное освещение.
Современные конструкции и отделка:
Каркас и кровля металл с защитой от коррозии. Утепленные стены и перегородки: сэндвич-панели 150 мм (наружные) и 100 мм (внутренние) Кровля: профилированный настил + ПВХ-мембрана Полы: производственные зоны бетон с топпингом (антипыль). Административные зоны черновая стяжка. Остекление: энергоэффективные ПВХ-окна с двухкамерными стеклопакетами. Ворота: секционные сэндвич-ворота 3.0х3.5м или 4.1х3.5 с электроприводом.
Энергоэффективность:
Светодиодное освещение (рабочее и аварийное) внутри и снаружи (фонари, прожектора). Экономия на электричестве. Приточно-вытяжная вентиляция в промзонах. Развитая территория:
Экономия времени и денег: все коммуникации подведены, разрешения согласованы начинайте работу быстро. Безопасность и контроль: спокойствие за имущество и сотрудников 24/7. Престиж и имидж: современные здания в охраняемом парке, управляющая компания, размещение среди статусных резидентов. Гибкость: объединяйте секции под ваши задачи. Резервы мощности: электричество, высота потолков есть запас для роста.