Торговые площади
Амундсена, 74 Показать на карте
Амундсена, 74 Показать на карте
Ленинский район, Юго-Западный
Екатеринбург
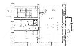
ПРЕДЛАГАЕТСЯ в АРЕНДУ ТОРГОВОЕ ПОМЕЩЕНИЕ общей площадью 98 кв. м.Без комиссии для арендатора.РАСПОЛОЖЕНИЕ:- помещение находится на перекрестке Амундсена / Онуфриева, объездная автодорога- рядом в помещениях располагаются: Мужики Про, салон красоты, ПВЗ WB, Ozon, Яндекс Маркет, детские центры, салон замков и др.В непосредственной близости от входа остановка общественного транспорта ''Онуфриева''Напротив пешеходный переход на противоположную сторону улицы.М Чкаловская - 7 мин транспортом (34 мин пешком)М Ботаническая 9 мин транспортом (44 мин пешком)ОСНОВНЫЕ ХАРАКТЕРИСТИКИ:- помещение находится на 1-м этаже 9-ти этажного жилого дома- площадь 98 кв. м, общая площадь с застекленными тамбурами 126 кв.м..- помещение расположено с торца дома, с удобным подъездом для погрузки и разгрузки.- парковка в непосредственной близости- два отдельных входа с ул. Амундсена.- год постройки 1976г.- смешанная планировка помещения- высота потолков 2,4 м - мощность 30 квт НАЗНАЧЕНИЕ:Сдаваемое помещение идеально подойдет под продуктовый магазин, кондитерскую, магазин, офис-склад, аптеку, детский центр, спортивный и досуговый центр, ПВЗ, магазин алкогольной продукции и др.СТОИМОСТЬ:Стоимость аренды: 140 000 рублейКоммунальные платежи в стоимость аренды не включены.Более подробную информацию уточняйте у наших менеджеров------------------------------------------------- -----''Партнер Инвест''.Коммерческая недвижимость.Без комиссии для арендаторов
98 м2
- Показать контакты
- Добавить в избранное
98 м2
140 000 /мес.
1 428 /м2
