Универсальное помещение
Фронтовых бригад, 15/4 Показать на карте
Фронтовых бригад, 15/4 Показать на карте
Машиностроителей, 13 мин
Екатеринбург
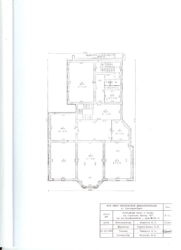
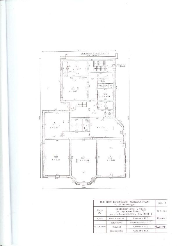
Сдаётся помещение общей площадью 172,7 м², расположенное на первом этаже, в первой линии застройки.Отдельный вход, есть возможность размещения вывески и наружной рекламыКоммуникации: • вода, канализация, отопление, санузел • приточная вентиляция, центральное отопление • дополнительный вход с внутренней стороны территорииТребуется ремонт, условия аренды и ремонтные каникулы готовы обсуждать. Организации общественного питания и производства пищи не рассматриваются.По всем вопросам и для организации просмотра — звоните по телефону.аренда помещения, помещение в аренду, коммерческое помещение, помещение 1 этаж, первая линия, помещение с отдельным входом, аренда под бизнес, нежилое помещение, аренда Екатеринбург
172 м2
- Показать контакты
- Добавить в избранное
172 м2
126 935 /мес.
735 /м2
