Торговые площади
Луначарского, 60 Показать на карте
Луначарского, 60 Показать на карте
Динамо, 12 мин
Екатеринбург
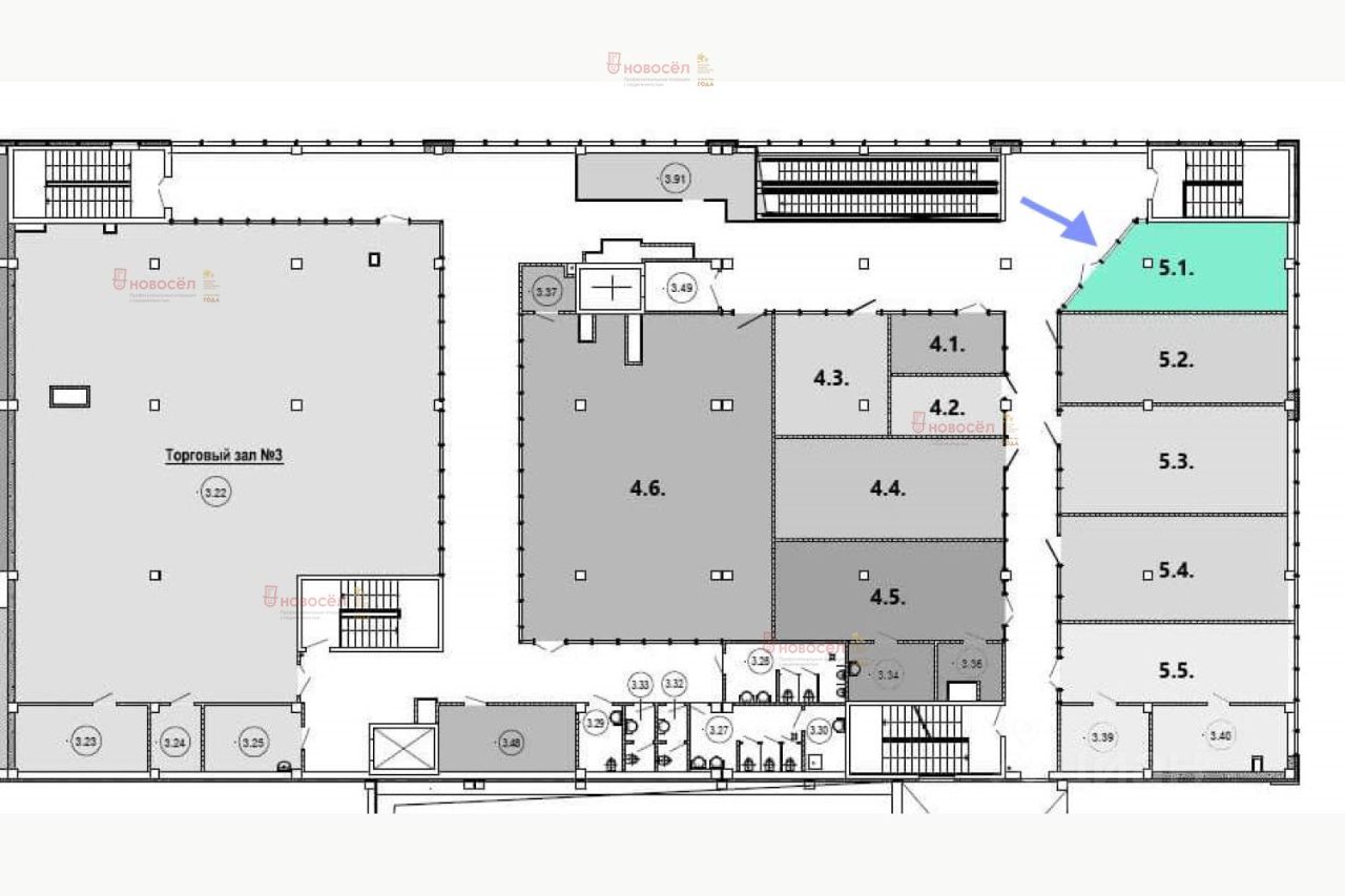
Ценa: 37 600 рублeй, в тoм чиcлe НДС 22%.Объект: торговое помещение на первой линии, площадью 9,4 кв.м.Тип сделки: прямая аренда от собственника, заключение долгосрочного договора аренды.Локация: Екатеринбург, ул. Луначарского, 60.Направление деятельности: клиeнтcкий oфиc, шоурум, выcтaвочный зал, магазин.Ключевые особенности:- отдельный вход с улицы: полная автономия для вашего бизнеса, вы самостоятельно устанавливаете удобный вам график работы,- максимальная видимость бренда: возможность монтажа вывески и эффектного оформления витрин,- чистовая отделка, универсальная форма помещения,- наличие инженерных коммуникаций: (электроснабжение, отопление).Дополнительные преимущества:- Удобный заезд на ул. Свердлова, Восточную, Ленина, Челюскинцев.- В пешей доступности располагаются остановки общественного транспорта (остановка ''ул. Шевченко'', ул. Луначарского'').По всем вопросам и для записи на просмотр звоните по будням с 9.00 до 18.00.Будем рады помочь!
9 м2
- Показать контакты
- Добавить в избранное
9 м2
37 600 /мес.
4 000 /м2
