2-к, Громова, 27 Показать на карте
Ленинский район, Юго-Западный
Екатеринбург, Дом на Ясной
''Дом на Ясной'' от Практики - уже построен и готов к заселению. Расположен на пересечении улиц Ясная и Шаумяна, рядом с парком 50-летия ВЛКСМ. Вся необходимая инфраструктура - детские сады, гимназии и школа олимпийского резерва с бассейном - находится в шаговой доступности. Это баланс между близостью к деловому центру и возможностью отдыхать на природе прямо у дома.Двор выделяется масштабом: на территории 2,8 гектара размещены два спортивных корта и воркаут-зона. Для детей предусмотрены игровые комплексы и одна из самых больших песочниц в городе. В многоуровневый паркинг на 778 мест можно спуститься на лифте. Также предусмотрены кладовые, колясочные и велосипедные.Лобби оформлены в лаконичной природной гамме с мягким освещением. Безбарьерная среда и сквозные входы позволяют удобно разделять потоки жителей и гостей. В каждой секции установлены три скоростных лифта, включая грузовой.Квартиры предлагаются с отделкой под чистовую или готовым ремонтом под ключ. В санузлах выполнена гидроизоляция, установлены унитаз и раковина со смесителем.
До центра ~ 45 мин
Приблизительное время на общественном транспорте до площадь 1905 года (Центр) – 45 мин
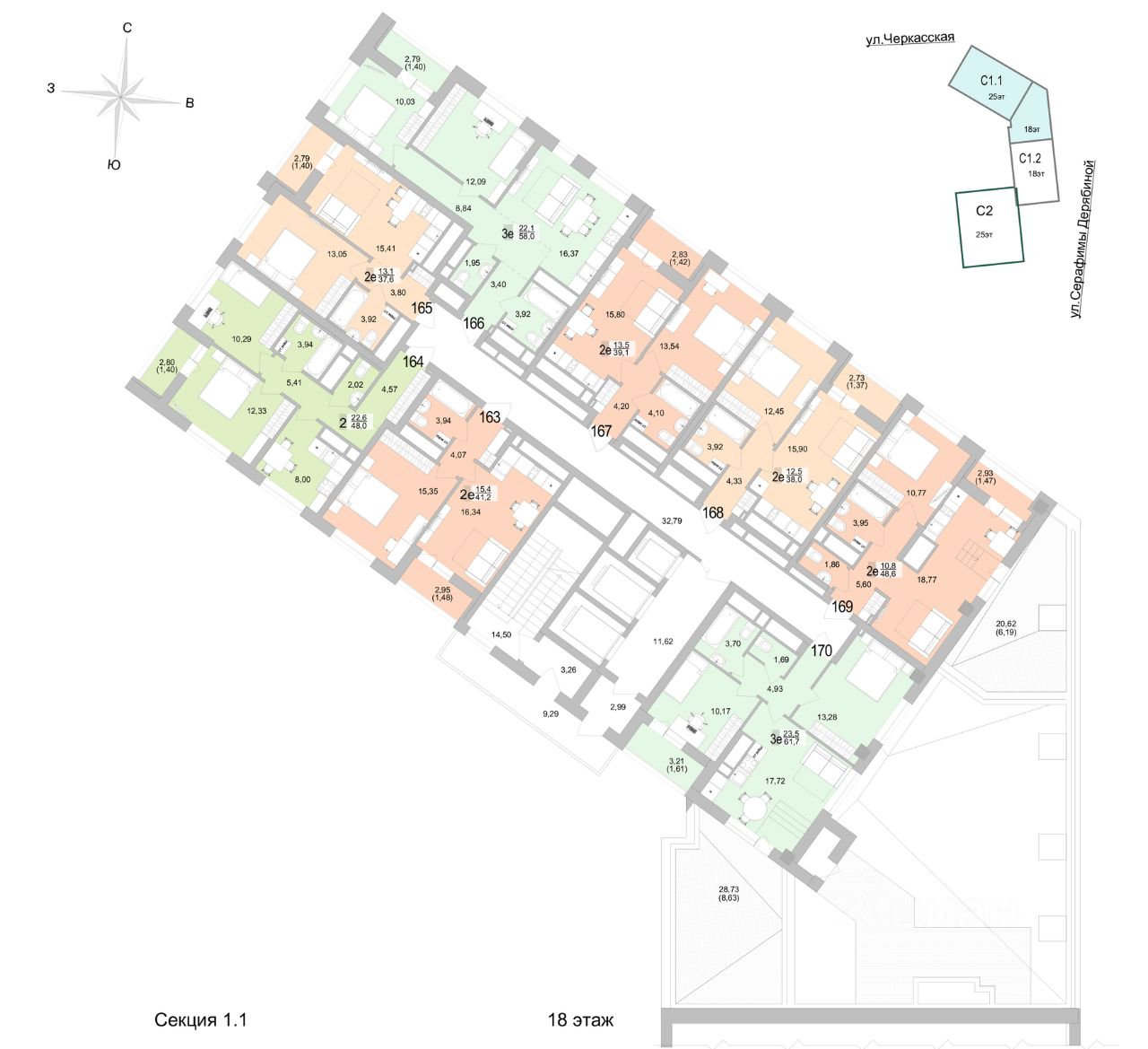
52 м2
22 / 25 этаж
Бетонные блоки - монолит
- Показать контакты
- Добавить в избранное
52 м2
22 / 25 этаж
Бетонные блоки - монолит
8 681 958
166 321 /м2
Новостройка,
дом сдан
дом сдан
