1-к, Владимира Высоцкого, 7/2 стр. Показать на карте
Кировский район, ЖБИ
Екатеринбург, Квартал-парк Каменные Палатки
Продается квартира в современном Квартал-парке ''Каменные Палатки'' новый жилой комплекс комфорт-класса расположен на границе микрорайонов ЖБИ и Втузгородок, в 15 минутах от центра города рядом с природным парком Каменные палатки и озером Шарташ.В продаже 4 очередь (секция 16).Срок сдачи 4 квартал 2025 годаПреимущества квартир:• Высокие потолки (2,7 м),• Качественная чистовая отделка: входные двери, ламинат, обои под покраску, установлена сантехника,• Горизонтальная разводка систем отопления свободные стены,• Счетчики на э/э, воду и тепло ежемесячная экономия на коммунальных платежах,• Сделаны входы для слаботочных сетей (интернет, телефон, цифровое телевидение).Преимущества дома:• Просторная закрытая придомовая территория,• Прямо из комплекса выход в природный парк Каменные Палатки,• Просторная наземная парковка и подземный паркинг,• Муниципальный детский сад в 3й очереди на 200 мест,• В жилом комплексе расположены ЖизньМарт, Монетка, Пятёрочка, пункты выдачи ЯндексМаркет, Ozon и Wildberries. Детский оздоровительный центр и кинологический клуб. • В нескольких минутах от дома расположены: гимназия 45, пять детских садов, гипермаркет ''Мегамарт''.
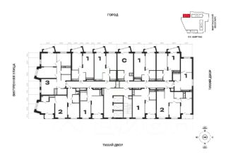
44 м2
27 / 31 этаж
Кирпич - монолит
- Показать контакты
- Добавить в избранное
44 м2
27 / 31 этаж
Кирпич - монолит
7 824 638
176 310 /м2
Новостройка,
II-2026
II-2026
