1-к, Комсомольская, 78/1 Показать на карте
Кировский район, Втузгородок
Екатеринбург
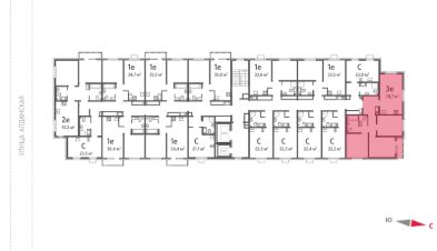
Просторная 1-комн. квартира с предчистовой отделкой в ЖК ''Алиса'' на 15 этаже. Общая площадь: 39.28 кв.м., жилая: 13.14 кв.м., площадь просторной кухни-столовой: 14.24 кв.м. Все окна выходят на одну сторону. В квартире один совмещенный санузел. Высота потолков 2.72 м. Дом монолитный, черырехподъездный, высотой 25 этажей. Квартира находится в 7-й секции в корпусе 1. На этаже 6 квартир. В подъезде 11 пассажирских и 1 грузовой лифт. Окончание строительства - 4 квартал 2028 года. Оформление сделки по договору долевого участия. ЖК ''Алиса'' — это уникальная коллаборация Яндекс и BAZA Development, где совместно разработана комплектация для оснащения квартир, жизни в доме и развития УК. - Забудьте о ключах: подъезд, паркинг и лифт открываются автоматически.- Готовые сценарии в один клик: автоматическое проветривание, контроль отопления и освещения.- Безопасность 24/7: доступ к видеонаблюдению прямо с вашего смартфона, а также датчики протечки.- Каждому новосёлу предоставляется подарочный бокс с умными устройствами. Локация - Втузгородок. Интеллектуальный хаб города. Рядом сосредоточены ведущие вузы, научные центры. Комплекс включает 3 очереди застройки с развитой инфраструктурой:• Комьюнити-центр• Общая терраса• Кофейня в лобби• Падел-корт• Детский сад• Подземный паркинг с автомойкой• Фитнес с бассейном• Терраса с кинотеатром, баром и каворкингом Предлагаем будущим жителям отделку White Box или три варианта стилистики чистовой отделки на выбор: - Акцентный стиль отделки: общая палитра в теплых бежевых тонах с акцетной стеной темно-террактотово цвета.- Классический стиль отделки: мягкие нейтральные оттенки, стена оливкого цвета.- Стиль отделки УРБАН -ЛОФТ: индустриальная эстетика с контрастом белого и черного, бетонные потолки, открытая подводка, стены под кирпич. #z6M22o
До центра ~ 35 мин
Приблизительное время на общественном транспорте до площадь 1905 года (Центр) – 35 мин
39 м2
15 / 25 этаж
Монолит
- Показать контакты
- Добавить в избранное
39 м2
15 / 25 этаж
Монолит
8 656 661
220 383 /м2
Новостройка,
IV-2028
IV-2028
