1-к, Библиотечная, 41 Показать на карте
Кировский район, Втузгородок
Екатеринбург, Жилой комплекс «Библиотечная 41»
Библиотечная, 41 финальный дом микрорайона Университетский, современный проект комфорт-класса, отражающий высокие стандарты качества компании ''Первостроитель''. Дом органично вписался в микрорайон, став его естественным продолжением и унаследовав все преимущества: развитую социальную и коммерческую инфраструктуру, комфортную городскую среду и транспортную доступность.- 2 секции- 24 жилых этажа- 3 лифта в каждой секции- 15 вариантов планировочных решений- Классические и евро-планировки- Единый парадный холл- Колясочная и гостевой санузел на первом этаже- Безопасность: видеонаблюдение, контроль доступа, видеодомофония, BLE-метки, мобильное приложение- Подземный паркинг и кладовые- Приточно-вытяжная вентиляция с рекуперацией- Территория для прогулок и отдыха, зелёный пешеходный бульвар, детские и спортивные площадки- Привилегии ''Клуба Своих'' в рамках экосистемы ''Первостроитель''В секции А представлены квартиры с отделкой ''под чистовую''. Отделка под чистовую — удобный формат для тех, кто ценит своё время и хочет создать интерьер по своему вкусу. Все трудоёмкие черновые работы выполнены, остаётся выбрать только финишные покрытия.- выровненные стены- пятикамерный ПВХ профиль, двухкамерный стеклопакет- детский замок на каждой створке- подоконник из пластика белого цвета- выравнивающая стяжка пола с шумоизоляцией- горизонтальная разводка отопления- раковина и унитаз в одном из санузлов- радиаторы отопления с терморегулятором- разводка электрики- электрика по принципу ''умной планировки'' кухни- приточно-вытяжная вентиляция с рекуперацией, выполнена разводка воздуховодов по квартире- на входе металлическая сейф-дверь
До центра ~ 30 мин
Приблизительное время на общественном транспорте до площадь 1905 года (Центр) – 30 мин
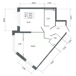
42 м2
11 / 25 этаж
Кирпич - монолит
- Показать контакты
- Добавить в избранное
42 м2
11 / 25 этаж
Кирпич - монолит
8 883 000
211 148 /м2
Новостройка,
IV-2027
IV-2027
