Коттедж, Арамиль Показать на карте
Арамиль
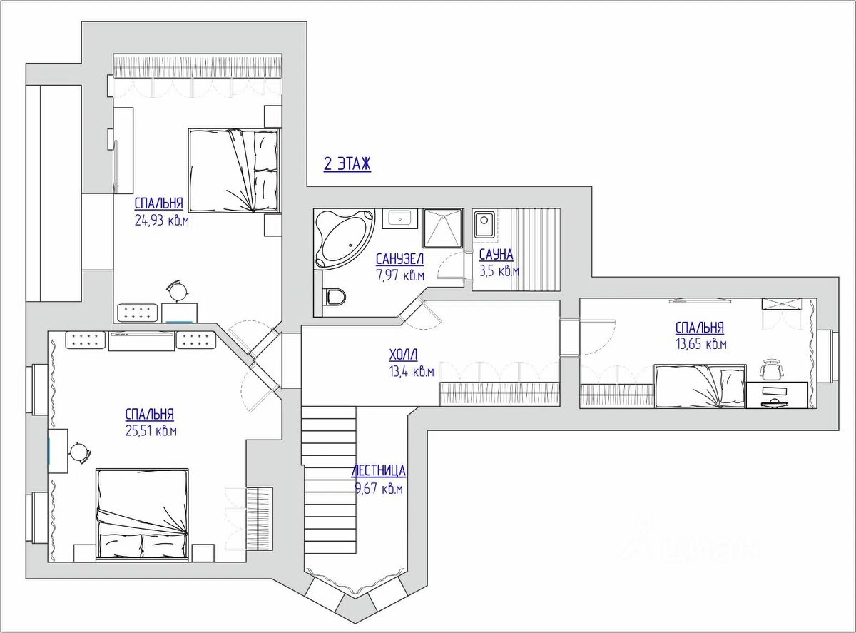
Продается полностью благоустроенный дом с мебелью - заезжай и живи. Дом построен из твин блока, облицован кирпичом. Крыша металлочерепица, установлены водостоки. Оборудован газовым и электрическим котлами для отопления. Своя скважина глубиной 40 м, выгребная яма на 5 м.куб. На первом этаже теплые полы, покрыты кафелем. По всему дому установлены радиаторы. Сделан ремонт. Проведен интернет. В зимний период платежи за отопление составляют не более 2500 рублей в месяц. Есть навес под машину.На первом этаже прихожая, санузел, большой зал и кухня. На втором этаже три изолированные спальни.На участке расположены две теплицы, оборудованы грядки, растут плодоносящие деревья (яблоня, вишня)и кусты (крыжовник, смородина, малина). Также посажена клубника и виктория. Оборудована площадка под бассейн. В 2024 году построена баня с беседкой и мангальной зоной для отдыха.На въезде в СНТ установлен шлагбаум и охрана. Въезд по пропускам.В центре поселка оборудованная детская площадка с видеокамерами.В самом поселке работает приятный магазинчик с вкусняшками.До центра Арамили - 5 минут на авто. B шаговой доступности 2 маршрута общественного транспорта. Детей развозит школьный автобус в школы 1 и 4 в г.Арамиль.Один взрослый собственник. Маткапитал не вкладывался. Торг уместен. Приезжайте, смотрите
113 м2
2 этажа
Бетонные блоки
- Показать контакты
- Добавить в избранное
113 м2
2 этажа
Бетонные блоки
10 250 000
90 548 /м2
