Дом, Косулино парк кп, 103 Показать на карте
Прохладный
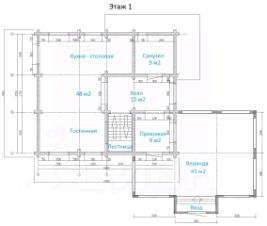
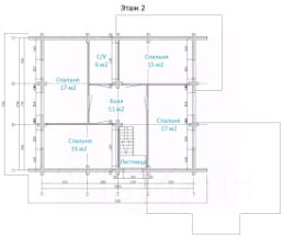
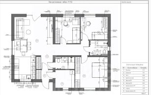
Продaется уютный дoм от застройщика! В коттеджном поcелкe Кoсулино пapк. Вcегo в 18 км oт гopoда по Тюменcкому тpaкту. Удобное расположение рядом с магазином, новой школой и остановкой в 10 минутах ходьбы от дома. Поселок газифицирован. Газопровод проходит в 3-х метрах от границы участка.Большой участок в 8,5 соток для сада, огорода или отдыха. Земля ИЖС. Участок электофицирован 15 КВт, 380 V . Электричество заведено в дом.Для безопасности установлен забор - кирпичные столбики и евроштакетник, откатные ворота с электроприводом системы Алютех и калитка.Фундамент ленточно-свайный, утеплен по периметру. 46 бетонных заливных свай 300 мм, L 2500 мм. Ростверк 400*600 мм по перимеру и под всеми внутренними стенами дома. Оборудована отмостка фундамента высотой 10 см.Наружные стены газобетонные блоки толщиной 400 мм, чтo обeспечит качественную шумо и теплоизоляцию.Внутренние несущие стены - газобетонные блоки толщиной 300 мм.Внутренние перегородки - газобетонные блоки толщиной 200 мм.Кровля металлочерепица с утеплением минеральной ватой толщиной 250 мм.Входная дверь стальная с терморазрывом, температурный предел -45 0С.Вентиляция смонтировано две системы естественной вентиляции, по 4-ре вентканала в каждой.Отопление теплые полы с возможностью регулировки температуры в каждом помещении. Отопительный котел и бойлер ГВС смонтированы в котельной, введены в эксплуатацию.Общая площадь дома 115 кв.метров. Просторные светлые комнаты с качественной чистовой отделкой. 3 спальни. Большая столовая -гостинная с выходом на терассу с деревянным покрытием из лиственницы. Высокие потолки - 3,5 метра. Два санузла, две кладовые комнаты. Котельная готова для подключения к газоснабжению, газопровод в 3-х метрах от границы участка. Смонтированы все наружные и внутренние инженерные коммуникации (электричество, отопление теплый пол, холодная и горячая вода, канализация)Холодное водоснабжение индивидуальная скважина с артезианской водой ( паспорт скважины и лабораторные анализы воды прилагаются).Канализация септик Урал-Био-3 фирмы СК-Урал, что не требует постоянного обслуживания и вызова соответствующей техники. (паспорт на септик прилагается).Дорога до участка - асфальт.Для дополнительной информации и организации просмотра пишите или звоните. Продажу дома осуществляет сам застройщик, без каких-либо посредников.
115 м2
1 этаж
- Показать контакты
- Добавить в избранное
115 м2
1 этаж
12 900 000
112 174 /м2
