Дом, Ромашка СНТ, 62 Показать на карте
Чкаловский район
Екатеринбург
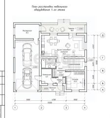
Продается Жилой дом и Земельный участок в СНТ ''Ромашка''.По документам Относится к городу! Возможность прописки!Направление Челябинский тракт, от станции м. Ботаническая - 15 км. (около 20 мин. езды на автомобиле). Удачное место расположения, тихое, вдали от оживленных трасс. Подъездные пути асфальт.Дом построен в 2010 г.Общая площадь 216 кв.м. Удобная функциональная планировка. Высокие потолки и просторные комнаты. Дом полностью благоустроен, в нем можно проживать круглый год.На 1 этаже располагается уютная гостиная с теплым камином - 18 м, функциональная кухня - 11 м, столовая - 22,7 м, санузел - 4,2 м, котельная и вспомогательные помещения.На 2 этаже (мансардном) - 2 спальни, каждая по 10 м, просторная комната отдыха - 48 м, застекленная лоджия - 14 м.Строительство и отделка дома:Фундамент - свайный с монолитным ж/б раствором, перекрытие: 1 этаж - заливной бетон, 2 этаж - деревянное отепленное, стены пеноблок + утеплитель, крыша - металлочерепица, наружная отделка стен - штукатурка и окраска, частично декоративная, внутренняя отделка стен - обои по гипсокартону, пол - ламинат, керамическая плитка, во все доме пластиковые стеклопакеты, межкомнатные двери - деревянное полотно, входные - сейф двери.Отопление водяное от котла на твердом топливе ''Гефест'', а также печное - кирпичный камин. Горячее водоснабжение от электрического водонагревателя на 120 литров. Водопровод - скважина 32 м. Канализация - выгребная яма (3 кольца - 9 кубов). Выкачивается 1 раз в год. Электроснабжение - 10 кВт. Земельный участок - 4 сотки. Земли населенных пунктов.Разрешенное использование - Садоводство.Участок разработан и ухожен. Имеются крупные многолетние деревья и кустарники, теплица.На территории находятся следующие постройки:Летняя беседка с мангальной зоной.Второе капитальное двухэтажное здание - 100 кв.м.Помещение, в котором планировалась баня и зона отдыха. Фундамент - свайный с монолитным ж/б раствором, перекрытие: 1 этаж - заливной бетон, 2 этаж - деревянное, стены пеноблок, крыша - металлочерепица. Окна - пластиковые стеклопакеты. Входные сейф двери.Инженерные коммуникации проведены (септик и санузел). Внутренней отделки - нет.ID объекта в нашей базе: 8426
216 м2
2 этажа
- Показать контакты
- Добавить в избранное
216 м2
2 этажа
6 990 000
32 361 /м2
