Дом, Морошковая, 1 Показать на карте
Рассоха
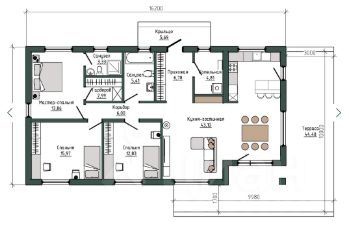
Просторный дом под ''ключ'' в современном охраняемом посёлке по цене маленькой квартиры!Дорога от Екатеринбурга до посёлка Зелёные Кварталы занимает всего 20 минут. Без пробок, ям и свалок по живописной асфальтированной дороге, которая ведёт прямо к Вашему дому. Звучит как мечта? Все верно!Расположен на солнечном участке, окруженном живописным лесом — идеальное место для отдыха и развлечений! Здесь вы можете обустроить уютную зону отдыха, создать уголок для игр детей в тени деревьев или организовать барбекю с семьей и друзьями. Спокойствие, природа и безопасность — всё это в вашем распоряжении!В доме Вас ждет отличная функциональная планировка, которая обеспечит комфортное проживание вашей семьи круглый год. В просторной прихожей предусмотрены зоны для хранения, обеспечивая порядок и чистоту в доме. Для удобства хозяйки в техническом помещении организована прачичная зона, также предусмотрена возможность организации дополнительного санузла. Три изолированные, просторные спальни позволят каждому наслаждаться личным пространством. Только представьте, у Вас появится своя ''Нарния'', где Вы на время сможете укрыться от всех забот))) У детей же будет пространство для учёбы, игр и хобби в любое время. Для комфорта Вашей семьи все спальни дополнительно оборудованы радиаторами отопления (помимо тёплого пола). Центром дома, наполненным ароматами любимых блюд и смехом домочадцев, непременно станет кухня-гостиная. Здесь вы будете готовить, общаться, вечерами смотреть любимые фильмы на удобном, мягком диване и играть в настольные игры. Из кухни-гостиной предусмотрен выход крытую террасу, с освещением, что позволит вам наслаждаться природой в любую погоду и время.В поселке создана необходимая инфраструктура для комфортного проживания. Поселок полностью огорожен забором, система видеонаблюдения и КПП обеспечивают Вашу безопасность. Дороги асфальтированы и освещаются, позволяя гулять по вечерним улицам. Для детей есть современная, безопасная детская площадка и спортивный корт, где можно проводить время активно и весело. В поселок осуществляется доставка продуктов из ближайших магазинов, а школьный автобус курсирует по расписанию, доставляя учеников в/из новую школу в Косулино (не выезжая на трассу!!) В пяти минутах езды в Косулино есть вся инфраструктура: аптеки, поликлиника, детские сады, ТРЦ, магазины, СПА центр Раздолье.Ваш идеальный загородный дом уже ждёт Вас! Звоните и мы с удовольствием Вас познакомим.
120 м2
1 этаж
- Показать контакты
- Добавить в избранное
120 м2
1 этаж
9 700 000
80 833 /м2
