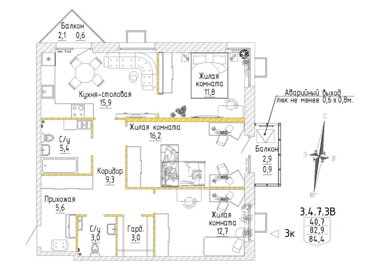
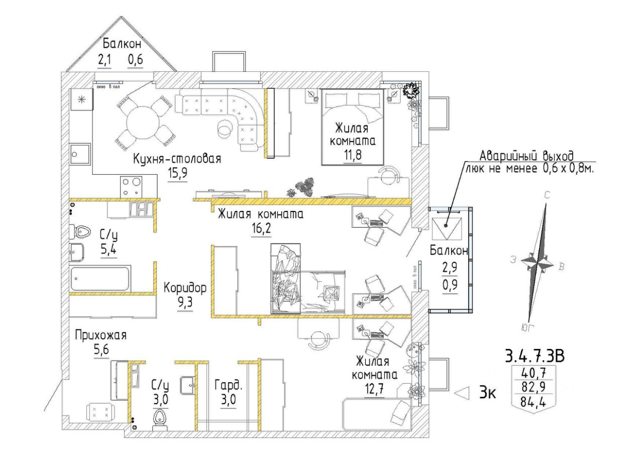
Продаётся 3-комнатная квартира в сданном доме (Леонида Мехонцева, 2 (Дом 9)), срок сдачи: I-кв. 2026, общей площадью 84.4 кв.м., на 8 этаже. ЗЕЛЕНАЯ ГОРКА - ПЕРСПЕКТИВНЫЙ ЖИЛОЙ РАЙОН В СЕВЕРНОЙ ЧАСТИ ЕКАТЕРИНБУРГА ВБЛИЗИ ПРИРОДЫ
Жилой район интегрирован в естественный ландшафт. Развитая инфраструктура Екатеринбурга, Верхней Пышмы в сочетании с природным спокойствием - это благоприятная зона роста.






































