Застройщик - Летний, ЖСК. Проектная декларация опубликована на сайте застройщика
ПРОДАЕТСЯ просторная 3-х комнатная квартира.
Интерьер выполнен по индивидуальному дизайн-проекту с использованием качественных материалов и оборудования, необходимых для комфортного и безопасного проживания. Большим преимуществом является наличие всего одной соседней квартиры на лестничной площадке.
Дом построен по спецпроекту, отличная тепло и звукоизоляция. Квартира расположена в 10-ти этажной секции, принятой в эксплуатацию в 2010 году. Заселение было также в 2010 г. Подъезд и территория регулярно убираются. Имеется видеонаблюдение.
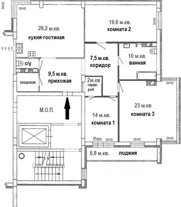
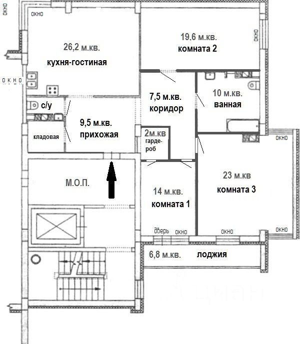
КВАРТИРА: Большая кухня-гостиная и три изолированных жилых комнаты, просторный холл, гардеробная комната, кладовая комната, шкафы-купе. - Окна - пластиковые, выходят на три стороны.
ПРОДАЕТСЯ просторная 3-х комнатная квартира.
Интерьер выполнен по индивидуальному дизайн-проекту с использованием качественных материалов и оборудования, необходимых для комфортного и безопасного проживания. Большим преимуществом является наличие всего одной соседней квартиры на лестничной площадке.
Дом построен по спецпроекту, отличная тепло и звукоизоляция. Квартира расположена в 10-ти этажной секции, принятой в эксплуатацию в 2010 году. Заселение было также в 2010 г. Подъезд и территория регулярно убираются. Имеется видеонаблюдение.
КВАРТИРА: Большая кухня-гостиная и три изолированных жилых комнаты, просторный холл, гардеробная комната, кладовая комната, шкафы-купе. - Окна - пластиковые, выходят на три стороны. - Полы керамогранит в коридоре и мокрых зонах, в комнатах ламинат. - 2 раздельных сан. узла с системой теплых полов. - Индивидуальный прибор учета тепла поверен в Октябре 2025 г, следующая поверка в 2030 г., установлен на один стояк теплоносителя, расположенный внутри квартиры. Разводка теплоносителя горизонтальная, в отопительный сезон расположенный в полу трубы создают эффект ''теплого пола''. Счетчики воды и эл. энергии так же в квартире. - Электрическая разводка выполнена медным проводом и скоммутирована через силовой встроенный шкаф ф-мы ''ABB'' отдельными групповыми автоматами и УЗО. - Лоджия, 6 метров, застеклена, установлен откидной стол. Отделка стен натуральное дерево, пол кафельная плитка. Окна во двор, на детскую площадку.
ИНФРАСТРУКТУРА: - Рядом несколько школ и детских садов. Метро: ст. Проспект Космонавтов (10 минут до станции), трамвай 14, 333 (из В.Пышмы), троллейбус 33, маршрутные автобусы. - ТРЦ Веер Молл, ПВЗ OZON и WB несколько точек, ТЦ Омега, ТЦ Белка маркет, ТЦ Метро, ТЦ Максидом, Магазин Строительный двор, несколько аптек. -В шаговой доступности в ближайшее время откроется новый мини торговый центр. - Удобный выезд в любую точку города и на загородные трассы. - Парк отдыха Калиновский. - Шиномонтажная мастерская и автомойка.
ЮРИДИЧЕСКАЯ ЧИСТОТА: - Один собственник совершеннолетний, более 5 лет, не имеет исполнительных листов, банкротом не является, паспорт действителен. - Квартира без арестов, обременений и залогов, МСК не использовался.
- Показы по договорённости. - Реальному покупателю в подарок мебельный кухонный гарнитур со встроенной бытовой техникой. - Рассматриваются варианты обмена.