Если цена в объявлении изменится, мы сразу сообщим вам об этом на электронную почту.
Нажимая «Подписаться», вы соглашаетесь с правилами.
продам 2-к квартира9 390 000 ₽
14 окт
Дата публикации объявления
Обн. вчера
Дата обновления объявления
4
Количество просмотров (+ просмотры за сегодня)
Спецпредложение
Турбо x8
135 108 ₽/м²
Чистая продажа
Термин "Чистая продажа" означает, что в квартире никто не прописан или
есть куда выписаться и вывезти вещи. Это лучший вариант для покупателя.
Вероятность срыва сделки минимальна.
Квартира
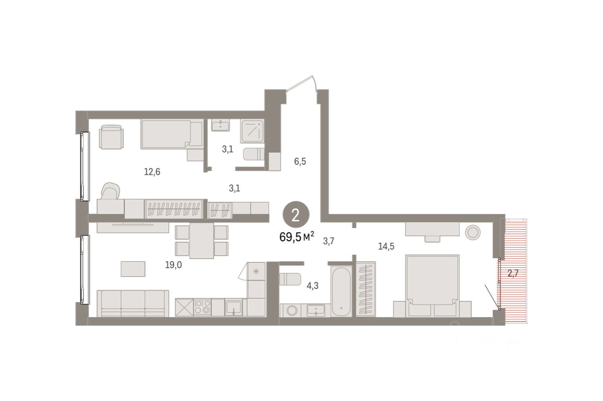
Общая площадь69,5 м2
Жилая площадь27,1 м2
Кухня19 м2
Количество балконов1
Тип собственностидоговор долевого участия
Дом
Срок сдачи4 кв. 2027 г.
Этаж3 из 7
Материал домамонолит
Спешите оформить бронирование на этих условиях, предложение ограничено! Стоимость квартиры указана со скидкой, ваша экономия составит 360,000 руб. Информация по телефону, мы вам все подробно расскажем.
Продается 2-комн. квартира с предчистовой отделкой в ЖК ''Квартал Траектория'' на 3 этаже. Общая площадь: 69.5 кв.м., жилая: 27.1 кв.м., площадь просторной кухни-столовой: 19 кв.м. Квартира - распашонка, без проходных комнат, окна выходят на paзные стороны дома. В квартире один балкон, два совмещенных санузла. Высота потолков 2.82 м.
Дом монолитный, многоподъездный, переменной этажности, от 7 до 25 этажей. Квартира находится в 7-й секции высотой 7 этажей в корпусе 1-1. На этаже 8 квартир. В подъезде 1 грузовой лифт. Начало строительства - 4 квартал 2025 года.
Спешите оформить бронирование на этих условиях, предложение ограничено! Стоимость квартиры указана со скидкой, ваша экономия составит 360,000 руб. Информация по телефону, мы вам все подробно расскажем.
Продается 2-комн. квартира с предчистовой отделкой в ЖК ''Квартал Траектория'' на 3 этаже. Общая площадь: 69.5 кв.м., жилая: 27.1 кв.м., площадь просторной кухни-столовой: 19 кв.м. Квартира - распашонка, без проходных комнат, окна выходят на paзные стороны дома. В квартире один балкон, два совмещенных санузла. Высота потолков 2.82 м.
Дом монолитный, многоподъездный, переменной этажности, от 7 до 25 этажей. Квартира находится в 7-й секции высотой 7 этажей в корпусе 1-1. На этаже 8 квартир. В подъезде 1 грузовой лифт. Начало строительства - 4 квартал 2025 года. Окончание строительства - 4 квартал 2027 года. Оформление сделки по договору долевого участия.
Квартира с кухней-гостиной и двумя спальнями в квартале ''Траектория''. Особенности планировки: балкон, вид во двор, второй санузел, предчистовая отделка, разнесённые спальни. квартиры в нашей базе: МНВ01-Ж7.3.2.
Квартал ''Траектория'' строится в границах улиц Билимбаевской, Расточной, Монтажников и Маневровой Раньше здесь находился оборонный завод 5-ЦАРЗ, основанный в 1945 году. После войны он ремонтировал военную и грузовую технику — от ''Виллисов'' и ''Студебекеров'' до советских ЗИС-5 и ГАЗ-67.
Сортировка — район с развитой инфраструктурой, обжитыми жилыми кварталами разных эпох и большим количеством парков. До центра Екатеринбурга — 20 минут на машине. Туда же можно отправиться на автобусе: ближайшая остановка общественного транспорта — в 4 минутах от ''Траектории''. Рядом с ''Траекторией'' расположены магазины, торговый центр, детские сады, школы, поликлиники и полезные сервисы, а также другой проект Брусники — квартал ''Депо''. Если хочется развлечений, можно отправиться в ТРЦ ''Карнавал'' и парк с аттракционами ''Таганская слобода'' — дорога туда займёт не более 10 минут на машине.
Квартал ''Траектория'' — первый этап комплексного развития территории, которую раньше занимали производственные здания. На месте бывших цехов Брусника создаст дружелюбную среду и комфортное пешеходное пространство для всего района. Для озеленения квартала мы подобрали больше 60 видов растений: ольху, липу, клён, иву, грушу, вишню, сирень, барбарис, гортензию, смородину, ирис, декоративные травы. Они цветут в разное время года и постоянно меняют настроение двора.
В ''Траектории'' мы предусмотрели несколько общественных пространств, открытых для всех горожан: встречающий сквер, лесопарк у храма и событийный сквер между домами. Когда захочется тишины и уединения, можно устроить прогулку во внутренних дворах: в них нет машин и посторонних, зато много зелени, света и мест для отдыха.
Каждый двор в квартале ''Траектория'' — продолжение квартиры, только под открытым небом. Здесь можно прогуляться босиком по траве, устроить утреннюю йогу, почитать книгу в гамаке или отправить детей поиграть, не переживая за их безопасность