Если цена в объявлении изменится, мы сразу сообщим вам об этом на электронную почту.
Нажимая «Подписаться», вы соглашаетесь с правилами.
продам коттедж, Долинка, 417 500 000 ₽
26 авг 2025
Дата публикации объявления
Обн. 20 дек
Дата обновления объявления
130
(+4)
Количество просмотров (+ просмотры за сегодня)
86 207 ₽/м²
Чистая продажа
Термин "Чистая продажа" означает, что в квартире никто не прописан или
есть куда выписаться и вывезти вещи. Это лучший вариант для покупателя.
Вероятность срыва сделки минимальна.
Этажей2
Площадь участка12,5 соток
Общая площадь203 м2
ЭлектричествоЕсть
Газоснабжениецентральное
Продажа от собственника! Возможен торг, так же рассмотрим обмен с вашей доплатой!
Уникальное предложение для вашей семьи — таунхаус (четырех комнатная квартира в двухквартирном доме) в престижном КП ''Долинка''. Мечтаете о жизни за городом, но не хотите расставаться с городскими удобствами? Этот дом — идеальный выбор!
Дом в Октябрьском районе Екатеринбурга, с прямым выездом на ЕКАД, Тюменский и Кольцовский тракты. До ЖБИ и Южного Автовокзала — 10 мин, до центра — 20-30 мин. По ЕКАДу можно добраться без пробок в любой район города.
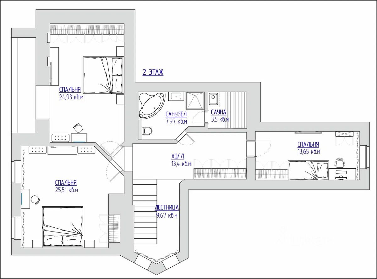
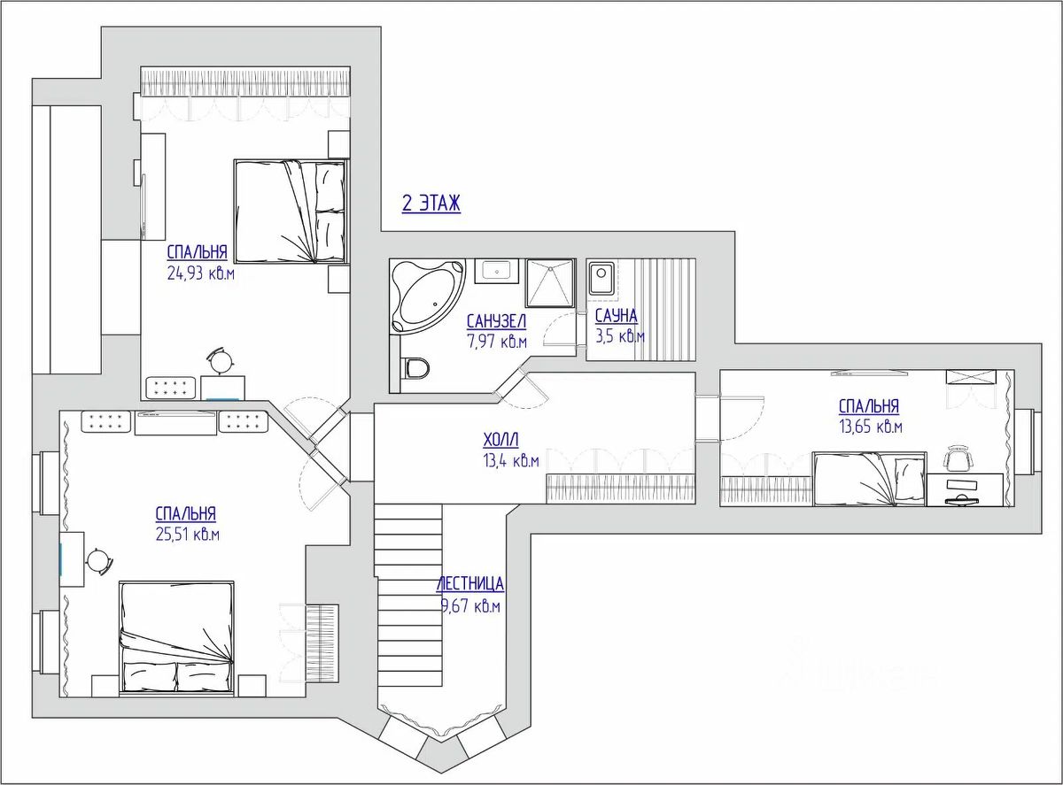
Площадь 203 м², два этажа + терраса 15 м². На первом: прихожая, холл, гостиная с камином, санузел, кладовая (можно сделать постирочную). На втором: 3 спальни, санузел, финская сауна с электропечью.
Продажа от собственника! Возможен торг, так же рассмотрим обмен с вашей доплатой!
Уникальное предложение для вашей семьи — таунхаус (четырех комнатная квартира в двухквартирном доме) в престижном КП ''Долинка''. Мечтаете о жизни за городом, но не хотите расставаться с городскими удобствами? Этот дом — идеальный выбор!
Дом в Октябрьском районе Екатеринбурга, с прямым выездом на ЕКАД, Тюменский и Кольцовский тракты. До ЖБИ и Южного Автовокзала — 10 мин, до центра — 20-30 мин. По ЕКАДу можно добраться без пробок в любой район города.
Площадь 203 м², два этажа + терраса 15 м². На первом: прихожая, холл, гостиная с камином, санузел, кладовая (можно сделать постирочную). На втором: 3 спальни, санузел, финская сауна с электропечью.
Дом построен из качественных материалов: твин-блок + утепление + декоративная штукатурка (толщина стен — 60 см). Зимой тепло, летом прохладно. Звукоизоляция отличная. Есть железобетонные перекрытия и лестница. Крыша — металлочерепица со снегозадержателями.
Отопление — газовое централизованное, теплый пол на первом этаже и в санузле второго. Канализация — централизованная. Вода из собственной скважины (есть подключение к централизованному водопроводу). Электричество — 15 кВт, 380 В.
В доме сделан качественный ремонт. Вся мебель и техника остаются новым владельцам. В подарок — современный дизайн-проект с размерами и развертками.
Участок 12,5 соток полностью облагорожен: газон, дорожки, сад с плодово-ягодными деревьями (яблони, груши, вишни), можжевельники, туи. Есть теплица для овощей и фруктов.
На участке расположен гараж на 2 машины с автоматическими воротами и места для парковки. Также есть беседка с панорамными окнами: кухня (мангал, коптильня, дровяная печь), овальный стол для большой компании и русская баня на дровах с горячей и холодной водой и теплым полом в душевой.
Поселок закрытый и охраняемый: КПП с шлагбаумом и видеонаблюдение. Асфальтированные дороги зимой чистятся, хорошее освещение. Развитая инфраструктура: рядом автобусная остановка, ФОК с бассейном, детская площадка и мероприятия для жителей. Есть выход в лес для грибников.
Этот дом — отличное сочетание комфорта городской жизни и живописной природы. Запишитесь на просмотр уже сегодня!