Новое отдельно стоящее здание в ЖК ''Северное сияние'', фасад и входная группа с улицы Уральских рабочих. Здание введено в эксплуатацию.
Лот состоит из двух объектов общей площадью 373,6 м2, разбивка по площадям:
•Кафе на 1 этаже, выход на ул. Уральских рабочих. •Площадь 222,6 м2 (в состав помещения входит 54 м2 в цоколе под холодильное оборудование и венткамера). •Две входные группы, отдельная зона загрузки. •Отделка под чистовую (требуется ремонт) •Витражное остекление. •Высота потолка 4,3м •Эл. мощность 70 кВт •Приточно- вытяжная вентиляция, вентиляция из с/у
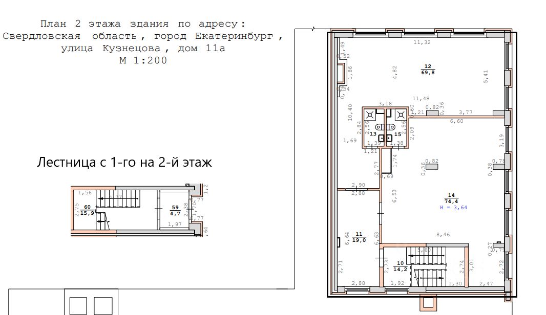
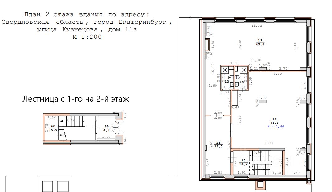
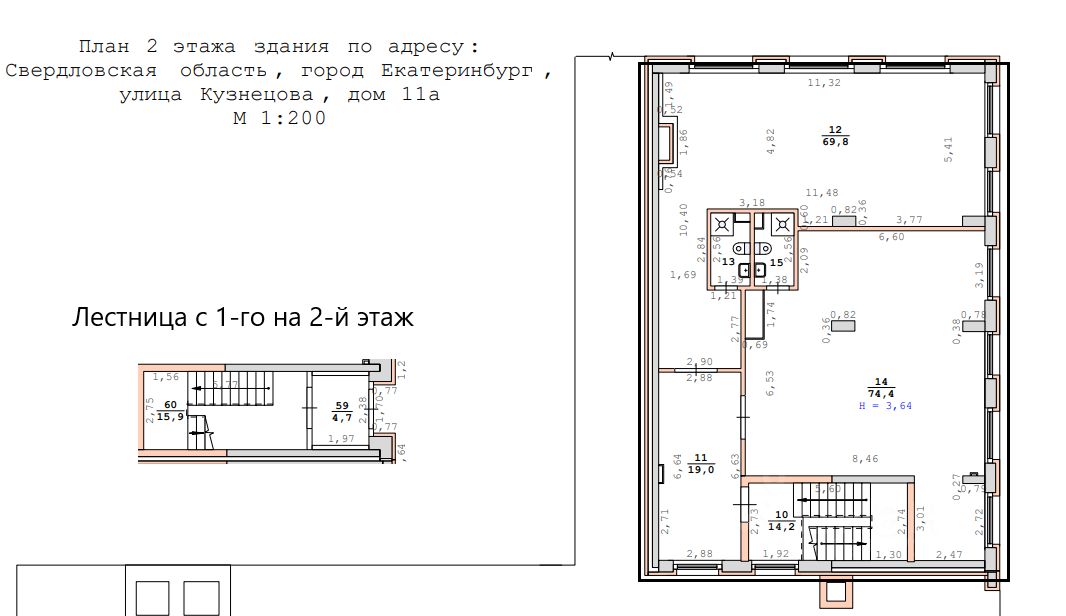
•Офисы на 2 этаже, •Площадь 151 м2 (два офиса площадью 73,2 м2 и 77,8 м2) •Отделка под чистовую (требуется ремонт), возможно объединение.
Новое отдельно стоящее здание в ЖК ''Северное сияние'', фасад и входная группа с улицы Уральских рабочих. Здание введено в эксплуатацию.
Лот состоит из двух объектов общей площадью 373,6 м2, разбивка по площадям:
•Кафе на 1 этаже, выход на ул. Уральских рабочих. •Площадь 222,6 м2 (в состав помещения входит 54 м2 в цоколе под холодильное оборудование и венткамера). •Две входные группы, отдельная зона загрузки. •Отделка под чистовую (требуется ремонт) •Витражное остекление. •Высота потолка 4,3м •Эл. мощность 70 кВт •Приточно- вытяжная вентиляция, вентиляция из с/у
•Офисы на 2 этаже, •Площадь 151 м2 (два офиса площадью 73,2 м2 и 77,8 м2) •Отделка под чистовую (требуется ремонт), возможно объединение. •Витражное остекление. •В каждом офисе свой сан.узел •Высота потолка 3,6 м •Эл. мощность 36 кВт на два офиса.
•Машиноместа •003, 004, 005, 006, 007. •На первом уровне паркинга. •Стоимость 2 300 000 руб. за машиноместо, общая стоимость 11 500 000 руб.
Подробности узнавайте у специалистов отдела продаж. Договоримся на просмотр, обсудим подробности.