Если цена в объявлении изменится, мы сразу сообщим вам об этом на электронную почту.
Нажимая «Подписаться», вы соглашаетесь с правилами.
продам 2-к, Ясная, 22г11 200 000 ₽
15 мая 2025
Дата публикации объявления
Обн. вчера
Дата обновления объявления
134
(+2)
Количество просмотров (+ просмотры за сегодня)
186 356 ₽/м²
Чистая продажа
Термин "Чистая продажа" означает, что в квартире никто не прописан или
есть куда выписаться и вывезти вещи. Это лучший вариант для покупателя.
Вероятность срыва сделки минимальна.
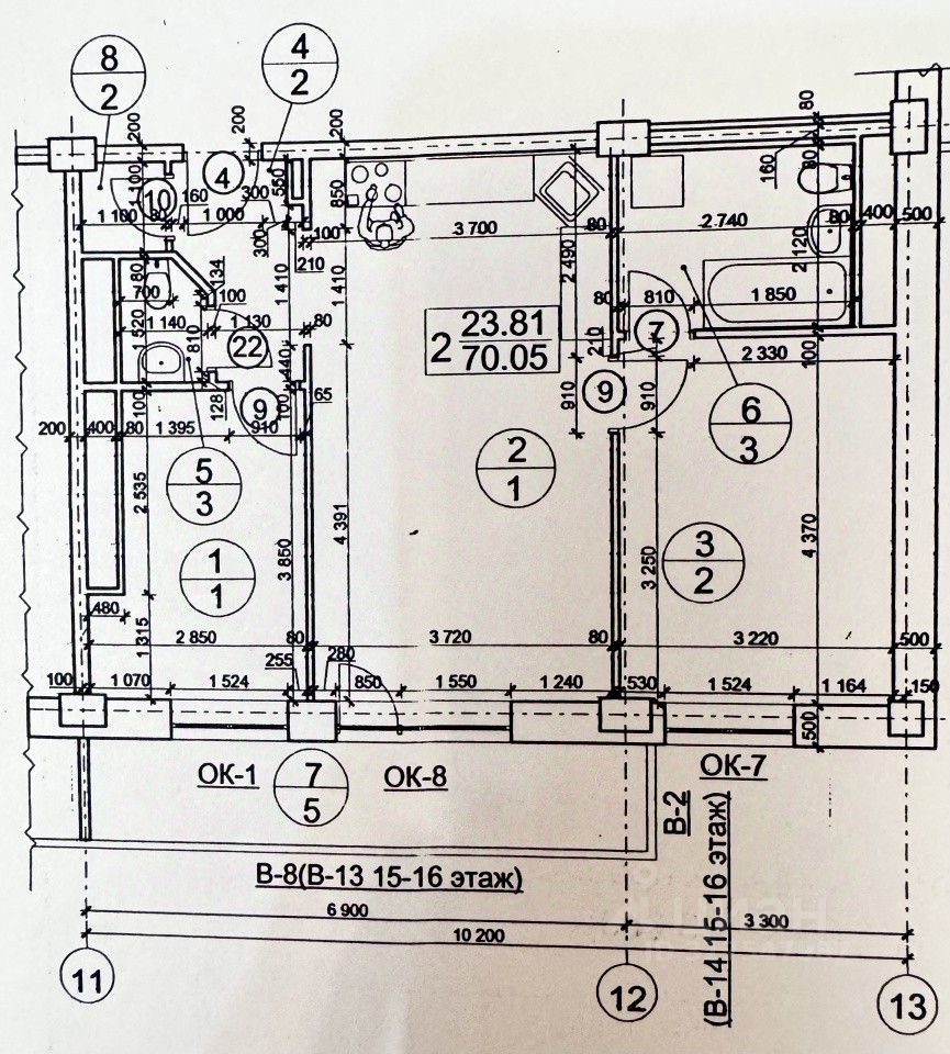
Двухкомнатная (Евро 3ка) квартира 60 м в доме комфорт-класса. Тихий спальный район Екатеринбурга. Об этом доме хочется рассказать отдельно. За 20 лет работы на рынке недвижимости я редко встречаю такие ухоженные дома, где:
* Соседи здороваются друг с другом, а незнакомые машины на территории останавливает охрана.
* Жильцы не мусорят, не срывают объявления, а велосипеды можно спокойно оставить у подъезда.
* Управляющая компания избирается советом жильцов, который строго контролирует порядок и вменяемые тарифы по ЖКУ.
В таком доме царит атмосфера уважения и безопасности, поэтому квартиры здесь продаются редко. Это не просто строение, а настоящее сообщество ответственных людей.
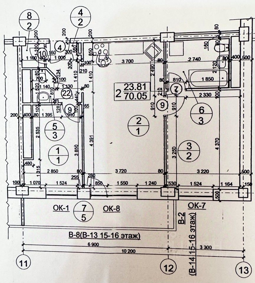
Двухкомнатная (Евро 3ка) квартира 60 м в доме комфорт-класса. Тихий спальный район Екатеринбурга. Об этом доме хочется рассказать отдельно. За 20 лет работы на рынке недвижимости я редко встречаю такие ухоженные дома, где:
* Соседи здороваются друг с другом, а незнакомые машины на территории останавливает охрана.
* Жильцы не мусорят, не срывают объявления, а велосипеды можно спокойно оставить у подъезда.
* Управляющая компания избирается советом жильцов, который строго контролирует порядок и вменяемые тарифы по ЖКУ.
В таком доме царит атмосфера уважения и безопасности, поэтому квартиры здесь продаются редко. Это не просто строение, а настоящее сообщество ответственных людей. О квартире:
* Просторная кухня-гостиная 24 м с выходом на лоджию 8 м.
* Две изолированные спальни, одна из них - с собственным санузлом.
* Вся техника и мебель остаются (бренды Siemens, Bosch, Thomson, AEG Electrolux), включая кондиционер.
* Вид из окна с 15-го этажа - панорама города и ощущение простора.
* Квартира полностью готова к проживанию: сделан качественный ремонт.
Безопасность и инфраструктура:
* Закрытая охраняемая территория, личное машиноместо на парковке.
* УК, которую выбирают собственники. Вы сами влияете на управление домом.
* Район Юго-Западного округа: тихий, зеленый, с развитой инфраструктурой. Парки, аллеи, школы, детские сады, поликлиники и магазины - все в шаговой доступности.
Юридические и финансовые условия:
* Квартира от первого и единственного собственника.
* Никто не зарегистрирован, нет обременений.
* Возможна покупка в ипотеку.
* Сопровождение сделки от опытной компании МФК ''Недвижимость'' (входит в группу компаний с многолетней историей на Урале). Гарантия прозрачности и безопасности.
* Организуем межрегинальную сделку.
Фото и видео не передадут атмосферу этого дома. Хотите увидеть все своими глазами и оценить редкое качество жизни? Звоните, чтобы назначить просмотр! Отвечаем на звонки быстрее, чем на сообщения в чатах. ID объекта в нашей базе: 1471