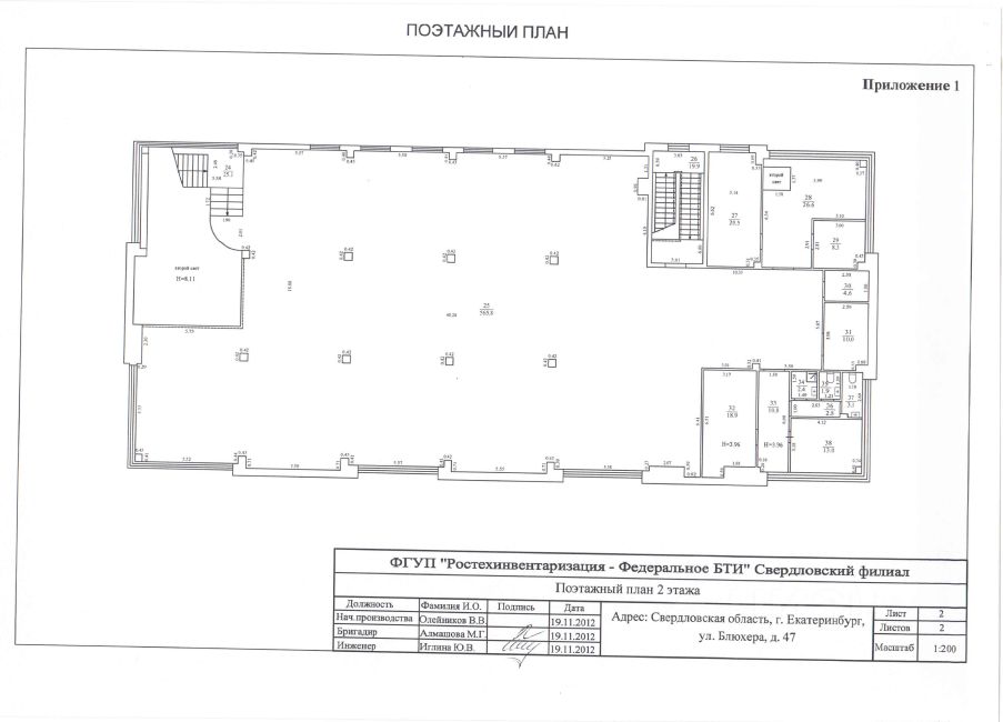
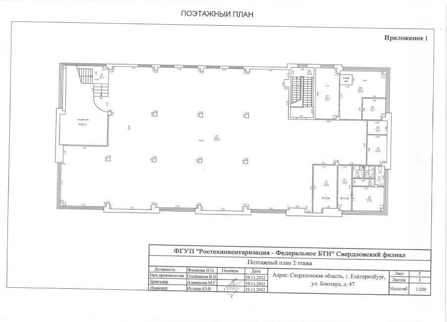
Продается помещение второго этажа в двухэтажном торговом комплексе:
- зона загрузки (дебаркадер)
- грузовой лифт
- отдельный служебный вход
- торговый комплекс располагается на первой линии улицы Блюхера/Мира
- высокий пешеходный и автомобильный трафик
- здание расположено в самом центре жилой застройки
- рядом находятся остановки общественного транспорта
Централизованные коммуникации:
- электроэнергия мощность 100 кВт
- ХВС, ВО
- отопление




