Производственное помещение
Фронтовых бригад, 18м Показать на карте
Фронтовых бригад, 18м Показать на карте
Орджоникидзевский район, Эльмаш
Екатеринбург
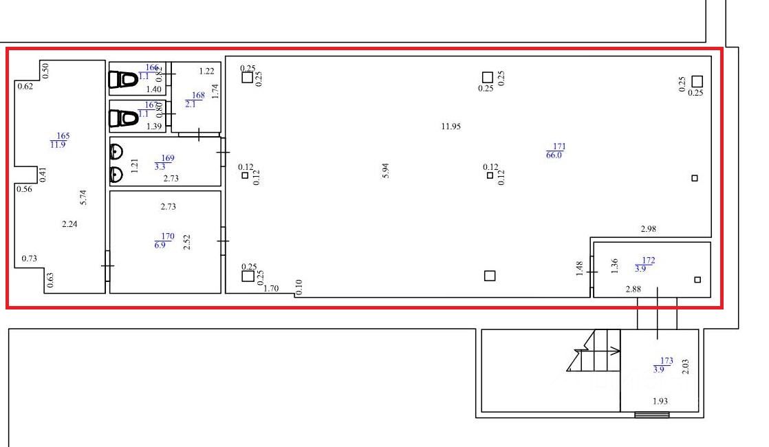
Объект 190192. Сдам в аренду 3 этаж в уникальном объекте 9-этажном производственно-складском здании (технопарк Левша), расположенном на территории Турбомоторного завода. Въезд на территорию по пропускам. В здание заведено электричество 500 кВт. Две независимые входные группы, а так же 2 пассажирских лифта, 1 грузовой лифт на 1т., и внешний подъемник на 2 т. Подведено центральное отопление и водоснабжение. На этаже сделан ремонт: залит пол, заменены окна, система отопления и водоснабжения. Нагрузка на пол: 800 кг/кв.м. Высота потолков: 2.8 м. Парковка до 30 м/м.Идеально подойдет под легкое производство, информационно-вычислительный центр, центр хранения данных, микроэлектронное производство и т.п. Дополнительно оплачиваются коммунальные услуги. Стоимость включает НДС 5%. Приглашаю арендаторов на просмотр!
1042 м2
- Показать контакты
- Добавить в избранное
1042 м2
521 400 /мес.
500 /м2
