2-к, Хрустальная, 55 Показать на карте
Октябрьский район, Синие камни
Екатеринбург
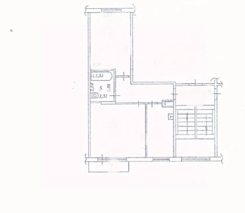
Продаётся 2-х комнатная квартира улучшенной планировки в тихом, зелёном микрорайоне. Уникальной особенностью дома является наличие всего 2-х квартир на площадке, с шикарной планировкой, с отдельной ''грязной'' зоной и кладовкой 6м.Окна больших светлых комнат (20,4 и 14,4 м.) расположены на разные стороны (Восток и Запад), что делает квартиру светлой, залитой солнцем с утра до вечера. Большой коридор, раздельный санузел.Во дворе всегда найдётся место для парковки вашего автомобиля. Напротив подъезда остановка общественного транспорта. В квартире остаётся вся мебель, можно заехать и жить, параллельно делая ремонт на свой вкус. Вся инфраструктура района в пешей доступности. ТРК КомсоМОЛЛ, крупный центр для семейного досуга (кинотеатр, боулинг, парк развлечений ТутоКруто, фитнес-клуб Powerhouse Gym), новый акватермальный комплекс ''Баден-ленд''.На районе гимназия ''Корифей'', детские сады, школы, физкультурно-спортивный клуб, детско-юношеский центр. Магазины Магнит, Кировский, Пятёрочка, Монетка, строительный ''Домстрой''.Также в пешей доступности озеро Шарташ и парк ''Каменные палатки''.Преимущество для автомобилистов - это легкий выезд за город в обе стороны и близкое расположение крупных магазинов ГиперЛенты и Метро. Квартира без долгов и обременений. Чистая продажа. Один собственник. Очень перспективный район после завершения развязки у Концерна ''Калина'' (осень 2026г.) Своего рода коттеджный посёлок в 10 минутах езды от центра города. Звоните, приходите на просмотр! Лучше один раз увидеть, ощутить и решить, что эта квартира для вас и вашей семьи.
55 м2
1 / 9 этаж
Панель
- Показать контакты
- Добавить в избранное
55 м2
1 / 9 этаж
Панель
5 850 000
106 171 /м2
