3-к, Куйбышева, 21 Показать на карте
Геологическая, 9 мин
Екатеринбург, Жилой комплекс «Мечта»
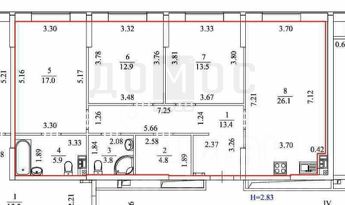
Продается 3-комнатная квартира с удобной перепланировкой и дизайнерским ремонтом в ЖК МечтаКомнаты:- большая кухня-гостиная - 2 спальни- отдельная гардеробная комната (очень вместительная и с большим зеркалом во всю дверь)- 2 санузла (в одном из них огромная ванна 120х180 см, которую комфортно принимать вдвоем и душевая кабина)- Просторный балкон Преимущества квартиры:- свежий современный ремонт- кондиционеры в каждой из комнат - остается вся встроенная мебель и техника- Теплые полы абсолютно во всей квартире и на балконе, везде керамогранитПри ремонте не экономили, выбирали качественные эко-материалы (в детской натяжной потолок из хлопка, всё дерево, что видите на фото, натуральное, каменные панели итальянского производства), техника Bosch, унитазы и биде Villeroy&BochПреимущества ЖК Мечта для семей с детьми:- большой закрытый благоустроенный двор с множеством детских площадок для разных возрастов- охрана и система видеонаблюдения- в подъезде колясочная- в доме частный детский сад, а вокруг множество развивающих детских центров, лицей 173, гимназия 5- в 2 минутах ходьбы парк Зеленая роща, в котором можно отдыхать с семьей, гулять с коляской, детьми, с собакой, совершать пробежки, кататься на велосипедах и на лыжах.- через дорогу от дома ледовая Дацюк Арена, Академия гимнастики, стадион Юность. В 10 минутах от дома ледовый дворец, новая 5-этажная академия единоборств РМКДругие преимущества ЖК Мечта: - управляющая компания Forum Service как в Тихвине и Форум-Сити- коммунальные платежи значительно ниже городских тарифов (своя скважина и газовая котельная)- подземный паркинг- в доме: 2 аптеки, 3 продуктовых (Пятерочка, ВкусВилл, Фермерский дворик), 2 ресторана (семейная БарЗая, Бистро 5) и пр- 600 м до метро
До центра ~ 20 мин
Приблизительное время на общественном транспорте до площадь 1905 года (Центр) – 20 мин
87 м2
2 / 16 этаж
Кирпич - монолит
- Показать контакты
- Добавить в избранное
87 м2
2 / 16 этаж
Кирпич - монолит
27 490 000
315 252 /м2
