2-к, Академика Бардина, 7 корп. 3 Показать на карте
Ленинский район, Юго-Западный
Екатеринбург
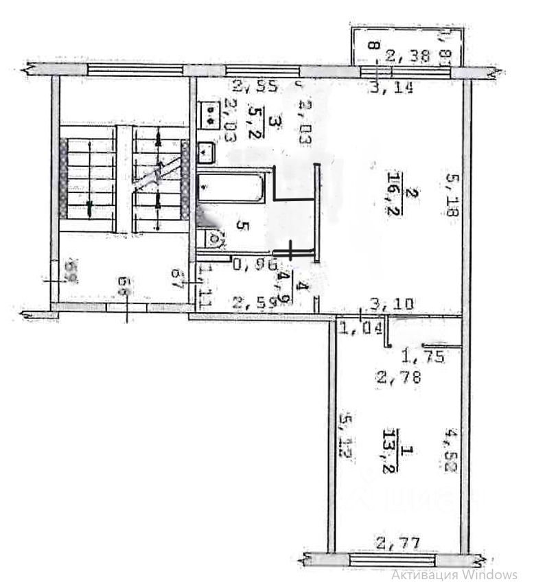
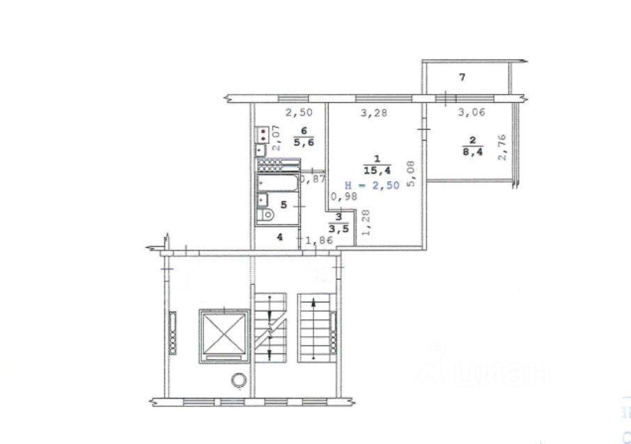
Продается уютная 2-комнатная квартира на первом этаже пятиэтажного панельного дома. Не стоит пугаться 1го этажа. у нас в доме эксплуатируемые подвалы, там сидят арендаторы. Нет сырости и живности Общая площадь квартиры составляет 43,2 кв. м, из которых 26,8 кв. м жилая площадь, а кухня занимает 6,4 кв. м. Кстати, кухонный гарнитур остается у вас Дом был построен в 1972 году, находится в хорошем состоянии с наземной парковкой для жителей. места есть всегда. Рядом расположен парк, поликлиники, садики, школа прямо за домом. Высота потолков 2,5 метра. До станции метро Чкаловская можно добраться на автомобиле всего за 8 минут и 15-20 на автобусе. Квартира с дизайнерским ремонтом, что позволит вам сразу заехать и наслаждаться уютной обстановкой. В квартире есть все необходимое для комфортной жизни: остаётся кровать и письменный стол (из белой комнаты), шкаф-купе (из яркой комнаты),прихожая (большой шкаф - обсуждаемо). Планировка квартиры продумана до мелочей, что создает ощущение простора и света. Окна выходят как на улицу, так и во двор, что обеспечивает отличную освещенность в течение всего дня. Санузел в квартире раздельный, отделан современными материалами.Дом расположен в районе с развитой инфраструктурой. В шаговой доступности находятся школы, детские сады, клиники и магазины, что делает это место идеальным для семей с детьми. Удобные транспортные развязки позволят вам без труда добраться до любой части города.Продажа от собственника, без посредников. Квартира без обременений, документы готовы к сделке. Возможна покупка в ипотеку. Условия сделки обсуждаются индивидуально с каждым покупателем.Приглашаем вас на просмотр квартиры в удобное для вас время. Не упустите шанс стать обладателем этой замечательной квартиры! Записывайтесь на просмотр и оцените все преимущества лично.p.s. есть небольшой ипотечный остаток (400к), закрою быстро перед выходом на сделкуторг уместен!
До центра ~ 30 мин
Приблизительное время на общественном транспорте до площадь 1905 года (Центр) – 30 мин
43 м2
1 / 5 этаж
Панель
- Показать контакты
- Добавить в избранное
43 м2
1 / 5 этаж
Панель
5 570 000
128 935 /м2
