2-к, Советская, 41 Показать на карте
Кировский район, Пионерский
Екатеринбург
Квартира, в которой хочется начать новую главу.Продаётся тёплая и светлая квартира на комфортном 4 этаже - идеальный вариант как для жизни, так и для выгодного вложения. Это пространство, где можно не просто жить, а создать интерьер своей мечты с нуля, под себя, без компромиссов и чужих решений.О квартире:- 1 собственник, квартира без обременений и долгов- Все документы готовы — быстрый выход на сделку- Без перепланировок — юридически чистый объект- Отличная база для реализации вашего ремонта- Очень тёплая, с хорошей шумоизоляцией- Все окна пластиковые- Исправная сантехника- Установлен домофонДом и подъезд:- Лифт работает исправно- Чистый, ухоженный подъезд- Спокойные и доброжелательные соседи- Большая наземная парковка — всегда есть место для автоЛокация - Пионерский район:Район, в котором действительно удобно жить. Всё рядом - от повседневных мелочей до важных объектов:- Магазины: Монетка, Магнит- Пункты выдачи: Wildberries, Ozon- Аптеки, закусочные- Остановки общественного транспорта— Детские сады и школы— Банки и всё необходимое для комфортной жизниИдеально подойдёт:- для семьи- для студентов- для сдачи в арендуДополнительно:- Торг возможен для реальных покупателейЗвоните и пишите - с удовольствием покажем и ответим на все вопросыЭта квартира - не просто квадратные метры, а возможность создать именно то пространство, о котором вы давно думали. Код пользователя: 194283Номер в базе: 12441689
До центра ~ 25 мин
Приблизительное время на общественном транспорте до площадь 1905 года (Центр) – 25 мин
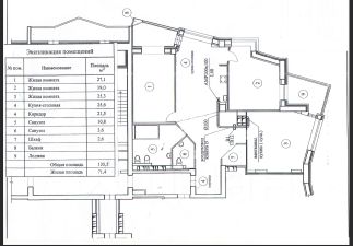
37 м2
4 / 9 этаж
Бетонные блоки
- Показать контакты
- Добавить в избранное
37 м2
4 / 9 этаж
Бетонные блоки
4 998 000
135 081 /м2
