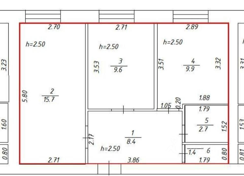
1-к, Токарей, 1а Показать на карте
Дегтярск
Продается просторная 1-комнатная квартира на 1 этаже в 2 этажном кирпичном доме. Возле дома дет.сад, рядом школа, магазины, за домом озеро. Квартира теплая, все окна выходят на солнечную сторону. В квартире остаётся электрический водонагреватель, прихожая. Собственник.
29 м2
1 / 2 этаж
Кирпич
- Показать контакты
- Добавить в избранное
29 м2
1 / 2 этаж
Кирпич
1 400 000
47 458 /м2
