Дом, Цветочная, 15 Показать на карте
Поварня
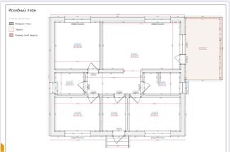
РАСПОЛОЖЕНИЕ: 25 километров по Тюменскому тракту и Вы находитесь в д.Поварня, дорога до дома займет не более 20 минут, здесь расположились: дом, гараж, баня, бассейн, двор, газон, участок с ландшафтным дизайном, садовые насаждения-это все есть на данном объекте. Также есть возможность добраться до Екатеринбурга через Кольцово или в сторону Каменска-Уральского на Электричке, станция расположена в 500 метрах от дома. В д.Поварня вся городская инфраструктура - магазины, школьный автобус безопасно доставит ребенка до новой школы в пос.Косулино, имеется место для проведения праздничных мероприятий. Улица Цветочная-тупиковая, нет постоянного движения машин, обжита, приятные соседи. Рядом расположен питомник, где можно приобрести любые виды растений.ХАРАКТЕРИСТИКИ ДОМА: строили самостоятельно, это не первый дом, который был построен собственниками, поэтому предусмотрели все. Год завершения строительства-2021, в 2022 году поставлен на кадастровый учет. Вход на участок оборудован откатными воротами, площадь дома: 148,2 м2 , один этаж, фундамент-ленточный, сваи, плита, утепление, теплый пол, на полу сухая стяжка, стены-300 пеноблок, покрыты машинной штукатуркой после наклеены обои, крыша- металочерепица утеплена минеральной ватой 200мм, натяжной потолок, скважина 89 метров-проблем с набором воды нет, обустроен погреб для хранения заготовок. Газ поведен к участку, электрический котел. В доме 4 комнаты: родительская спальня 16,5 м2, две детские комнаты по 13,4 м2, гостиная 24м2, просторная кухня, два санузла, вместительная гардеробная. Ремонт выполнен с использованием качественных материалов.УЧАСТОК: площадь- 10 соток - Категория земли: земли населенных пунктов, участок ровный, сухой, ухожен и разработан, имеются плодово-ягодные растения, а также много цветов (розы, гортензии, спирея, ирисы), можевельника, туй, зелени, есть прудик с живым карпом, 2 теплицы, хозблок, вольер для собак 9*2 метра с будкой 2*1,5 метра. Бассейн каркасный с системой фильтрации и очистки, можно использовать круглый год, а также зона отдыха.БАНЯ: два этажа, размером 6*9 метров, сруб осины, отдельно зона парения и помывочная, санузел.БЕСЕДКА: теплая с мангальной зоной и дровяником.ПРЕИМУЩЕСТВА: Дом расположен в непосредственной близости с лесом, идеальное сочетание природы, уюта и дружелюбного соседства! Звоните прямо сейчас, чтобы записаться на просмотр, и откройте для себя новый уровень жизни!
148 м2
1 этаж
- Показать контакты
- Добавить в избранное
148 м2
1 этаж
22 000 000
148 448 /м2
