Коттедж, Красоты кп Показать на карте
Красоты кп
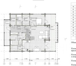
Прекрасный живописный дом в коттеджном поселке КраСоты, что расположился в Юго-Восточном направлении, всего в каких-то 35 километрах от Екатеринбурга. Добраться до которого, можно по ровной асфальтированной трассе с Челябинского или Тюменского трактов. Дом для круглогодичного проживания.Жилой 2-х этажный дом, выполнен из клеёного бруса сечением 250х200мм, общей площадью 260кв.м, жилой площадью 195 кв.м:1 этаж:Коридор 19.28кв.м.Гостиная с панорамными окнами 47.44кв.м.Мастер спальня 16.42кв.м.Санузел 9.4кв.м.Ванна 15.32кв.мГардероб 10.84кв.м.Кладовая 7.74кв.м.Котельная 7.3кв.м.Терраса 35кв.м.Крыльцо 14.58кв.м 2 этаж:Две спальни каждая по 19.03кв.м панорамным окном и балконом с видом на лес.Санузел 9.9кв.м.Гардероб 9.9кв.м.Балкон 15кв.мУчасток 10.5 соток крайний граничит с вековым лесом. На участке много деревьев, сосны, березы. Дом имеет все условия чтобы почувствовать единение с природой при этом спокойно осенью в лесу собирать грибы.Территория котеджного поселка охраняется круглосуточно, пропускная система, дорога до дома полностью асфальтирована. Находится в полутора километров от двуреченска.
260 м2
2 этажа
Дерево
- Показать контакты
- Добавить в избранное
260 м2
2 этажа
Дерево
25 000 000
96 154 /м2
