Дом, Южноистокская, 70 Показать на карте
Октябрьский район, Исток
Екатеринбург
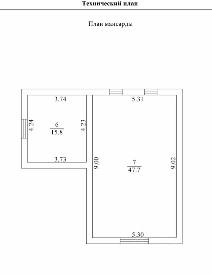
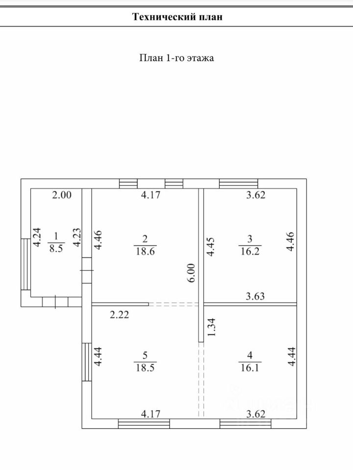
Продам готовый 1 этажный дом с отделкой ''под чистовую '' ( Дизайн проект дома в подарок), в новом коттеджном поселке Южный в Истоке, на земельном участке 12.99 соток в 1 очереди строительства .1 очередь Южного представлена 35 домами ,без архитектурного хаоса. Очередь состоит из типовых проектов домов в стиле- барнхаус, фахверк, скандинавский, хай-тек , а-фрей и др. В проекте предусмотрели - два внутриквартальных проезда, которые обеспечивают удобный доступ к коттеджам. Вдоль них установлены столбы освещения, а также уложены рулонные газоны - с которых начинается формирование зеленого ландшафта района.У каждого коттеджа оборудована собственная парковочная зона, вымощенная брусчаткой. Это позволило избежать стихийных парковок на проезжей части и дополнительных затрат на обустройство участка.Кадастровый номер ЗУ : 66:41:0614066:3968Кадастровый номер Дома : 66:41:0614066:4101 Планировка : Гостиная с кухней - 47.9 м2Терраса -54.1 м23 комнаты - 12.2 м2 , 12.9 м2, 12.7 м2Фасад дома - Вентилируемый металлический (фальцевый) фасад и частично деревянный фасад (планкен хвойный )Наружные сети:-Внешний электрический щиток, кабельная линия с вводом в дом мощностью 15 кВт.-Локальная очистная станция ТОПАС 6.- Индивидуальное водоснабжение-скважина, с вводом в дом.- рядом проходит газовая трассаЭлектропроводка:- Внешний электрический щиток, электроконвекторы, пожарная сигнализация-Разводка для розеток и включателейВодопровод:-Разводка ХВС, ГВС.-Системы холодного и горячего водоснабжения выполняются из пластиковых труб, прокладываемых вдоль стен, скважина с насосомКанализация:-Разводка канализации с вводом в домВентиляция:-Естественная вентиляция, вентканалы в санузле и на кухне, Благоустройство:-Рулонный газон, ограждение из штакетника,-Вымощенная брусчаткой парковка перед домом на 2 машино-места .Чистая продажа.Земля в собственности ИЖС.Дом в собственности .Возможна Ипотека .Вторичка в Зачет.ID объекта в нашей базе: 1679
168 м2
1 этаж
- Показать контакты
- Добавить в избранное
168 м2
1 этаж
8 950 000
53 210 /м2
