Дом, Лесной микрорайон, 26 Показать на карте
Новофомино СНТ
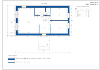
Продается готовый к проживанию Дом с полной отделкой 42 кв.м на участке 18 соток вблизи Двуреченского водохранилища в КП Новофомино 30 км от Екатеринбурга. Рядом остановка общественного транспорта, возможность подъезда с Челябинского, Тюменского, Арамильского трактов.Дом продается с мебелью и техникой, все что на фото входит в стоимость.Стены: газоблоки 250мм, утеплитель 50мм. Фундамент - сваи, ростверк и монолитная плита. Кровля - металлочерепица, утеплитель- 200мм. Коммуникации: электроснабжение 15 кВт (380), водоснабжение -скважина, септик - бетонные кольца, отопление - теплые полы (электрокотел и водонагреватель установлены).Участок правильной формы 18 соток с молодыми соснами и с собственным выходом в лес, по периметру установлен забор.На участке кроме дома построен гараж с беседкой, сделаны две скважины. Участок очень большой - есть возможность построить большой просторный Дом. По границе участка проходит газ, есть возможность быстрого подключения по программе социальная догазификация - до границы участка бесплатно. В поселке полный комплекс коммунальных услуг: охрана, освещение, расчистка дорог, вывоз мусора.Экологически чистая местность, сосновый лес с грибами и ягодами, рыболовное хозяйство, у поселка собственная пляжная зона для купания и отдыха на берегу Двуреченского водохранилища.Дом и земельный участок в собственности.ID объекта в нашей базе: 879
41 м2
1 этаж
Бетонные блоки
- Показать контакты
- Добавить в избранное
41 м2
1 этаж
Бетонные блоки
9 500 000
231 707 /м2
