Дом, Дальняя, 58 Показать на карте
Ключи
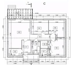
Объект 446. Продается напрямую от застройщика прекрасный дом 131,7 квадрата, для круглогодичного проживания, в отделке ''Под ключ'' с высокими потолками во всем доме, просторный и светлый.В доме:- прихожая- просторная кухня-гостинная с выходом на террасу- две спальни- мастер спальня с собственным гардеробом и санузлом- котельная- общий санузел- терраса Дом находится в д. Ключи 35 км. от Екатеринбурга, на земельном участке в 7,63 сотки, в окружении соснового леса. В самой деревне есть продуктовый магазин, шиномонтаж, пункт выдачи Озон, магазин Пятерочка. Ходят рейсовые и школьные автобусы, рядом г. Двуреченск.Дом можно приобрести по любой ипотечной программе.Звоните, ответим на все вопросы, подберем удобное для просмотра время, поможем с ипотекой.
131 м2
1 этаж
Кирпич
- Показать контакты
- Добавить в избранное
131 м2
1 этаж
Кирпич
7 900 000
59 985 /м2
