Мы объединились! Теперь объявления сразу на двух сайтах. Ищите там, где удобно
Приложение Циан
Личный кабинет
Сообщения
Избранное
  • Добавить объявление
  • Ипотека
  • Подбор риелтора
  • Журнал
  • Шаблоны документов
  • Продажа
  • Аренда
  • Новостройки
  • Коммерческая
  • Бизнес-центры
  • Дачи, участки
  • Земля
  • Гаражи

Продажа трехкомнатных квартир в Екатеринбурге

39 132 объяв.
1/9
12 420 966 ₽
2-к, Московская, 251
Чкаловская13 мин
56 м² · Этаж 26 из 33
Новостройка, сдана
Двухкомнатная квартира — это идеальное решение для тех, кто ценит комфорт или планирует расширение семьи. Здесь достаточно места для создания уютного семейного очага, личного кабинета или просторной гостиной, а планировка легко адаптируется под ваши потребности ''Парк Столиц'' — это жилая экосистема бизнес-класса: десять секций переменной этажности с закрытой территорией, уникальное дворовое пространство с ручьем, собственная УК, доступность в коммерческие помещения прямо из квартиры. В проектах ''Атлас Девелопмент'' вы можете воспользоваться рассрочкой, ипотекой, трейд-ин или комбо-покупкой в зависимости от конкретного комплекса. Комплекс находится в квартале улиц Московская — Щорса — Айвазовского — Циолковского. Развитая транспортная доступность района позволяют быстро добраться в любую точку города: в шаговой доступности находятся станция метро ''Чкаловская'' и остановки общественного транспорта Рядом 8 школ, 7 детских садов, магазины, аптеки и медицинские учреждения.
1/9
9 654 572 ₽
2-к, Металлургов, 70 лит. д
ВИЗ, Верх-Исетский район
66 м² · Этаж 8 из 31
Новостройка, 3 кв. 2028
Двухкомнатная квартира — это идеальное решение для тех, кто ценит комфорт или планирует расширение семьи. Здесь достаточно места для создания уютного семейного очага, личного кабинета или просторной гостиной, а планировка легко адаптируется под ваши потребности ''Атлас Визион'' — это жилая экосистема комфорт-плюс класса: девять башен переменной этажности с архитектурой, вдохновленной природой Урала, уникальным дворовым пространством, детским садом на 150 мест и подземным и наземным паркингами. Проект расположен на улице Металлургов, в пяти минутах от ТЦ ''Мега''. В районе уже сейчас есть все необходимое: школы, поликлиники, магазины. Уникальное преимущество жизни в экосистеме — резиденты получат доступ к сервисам и услугам, не выходя из дома, — кабинеты, студии и центры досуга можно будет посетить, буквально в тапочках, просто спустившись на лифте. В проектах ''Атлас Девелопмент'' можно воспользоваться рассрочкой, ипотекой, трейд-ин или комбо-покупкой в зависимости от конкретного комплекса.
1/6
12 583 321 ₽
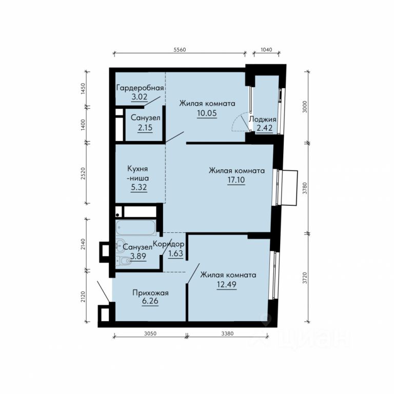
3-к, Зоологическая, 10.1 стр.
Юго-Западный, Верх-Исетский район
76 м² · Этаж 10 из 30
Новостройка, 3 кв. 2027
Продаётся 3-комнатная квартира в строящемся доме (Секция 1), срок сдачи: III-кв. 2027, общей площадью 76.57 кв.м., на 10 этаже. Новый жилой комплекс ''Forum Park'' от застройщика ''Форум-Групп'' расположен по адресу: г. Екатеринбург, Зоологическая улица.
1/6
5 521 868 ₽
1-к, Зоологическая, 10.1 стр.
Юго-Западный, Верх-Исетский район
28 м² · Этаж 21 из 30
Новостройка, 3 кв. 2027
Продаётся 1-комнатная квартира в строящемся доме (Секция 1), срок сдачи: III-кв. 2027, общей площадью 28.53 кв.м., на 21 этаже. Новый жилой комплекс ''Forum Park'' от застройщика ''Форум-Групп'' расположен по адресу: г. Екатеринбург, Зоологическая улица.
1/6
5 501 617 ₽
1-к, Зоологическая, 10.1 стр.
Юго-Западный, Верх-Исетский район
28 м² · Этаж 20 из 30
Новостройка, 3 кв. 2027
Продаётся 1-комнатная квартира в строящемся доме (Секция 1), срок сдачи: III-кв. 2027, общей площадью 28.53 кв.м., на 20 этаже. Новый жилой комплекс ''Forum Park'' от застройщика ''Форум-Групп'' расположен по адресу: г. Екатеринбург, Зоологическая улица.
1/6
10 465 810 ₽
3-к, Зоологическая, 10.2 стр.
Юго-Западный, Верх-Исетский район
63 м² · Этаж 18 из 31
Новостройка, 4 кв. 2026
Продаётся 3-комнатная квартира в строящемся доме (Секция 2), срок сдачи: IV-кв. 2026, общей площадью 63.12 кв.м., на 18 этаже. Новый жилой комплекс ''Forum Park'' от застройщика ''Форум-Групп'' расположен по адресу: г. Екатеринбург, Зоологическая улица.

Подбор риелтора

Риелтор поможет купить или продать любую недвижимость

Оставить заявку
1/6
11 811 780 ₽
3-к, Зоологическая, 10.1 стр.
Юго-Западный, Верх-Исетский район
75 м² · Этаж 2 из 30
Новостройка, 3 кв. 2027
Продаётся 3-комнатная квартира в строящемся доме (Секция 1), срок сдачи: III-кв. 2027, общей площадью 75.54 кв.м., на 2 этаже. Новый жилой комплекс ''Forum Park'' от застройщика ''Форум-Групп'' расположен по адресу: г. Екатеринбург, Зоологическая улица.
1/6
10 520 736 ₽
2-к, Зоологическая, 10.1 стр.
Юго-Западный, Верх-Исетский район
60 м² · Этаж 24 из 31
Новостройка, 3 кв. 2027
Продаётся 2-комнатная квартира в строящемся доме (Секция 1), срок сдачи: III-кв. 2027, общей площадью 60.04 кв.м., на 24 этаже. Новый жилой комплекс ''Forum Park'' от застройщика ''Форум-Групп'' расположен по адресу: г. Екатеринбург, Зоологическая улица.
1/6
7 221 331 ₽
1-к, Зоологическая, 10.1 стр.
Юго-Западный, Верх-Исетский район
36 м² · Этаж 21 из 30
Новостройка, 3 кв. 2027
Продаётся 1-комнатная квартира в строящемся доме (Секция 1), срок сдачи: III-кв. 2027, общей площадью 36.99 кв.м., на 21 этаже. Новый жилой комплекс ''Forum Park'' от застройщика ''Форум-Групп'' расположен по адресу: г. Екатеринбург, Зоологическая улица.
1/6
7 209 095 ₽
1-к, Зоологическая, 10.1 стр.
Юго-Западный, Верх-Исетский район
36 м² · Этаж 24 из 31
Новостройка, 3 кв. 2027
Продаётся 1-комнатная квартира в строящемся доме (Секция 1), срок сдачи: III-кв. 2027, общей площадью 36.49 кв.м., на 24 этаже. Новый жилой комплекс ''Forum Park'' от застройщика ''Форум-Групп'' расположен по адресу: г. Екатеринбург, Зоологическая улица.
1/9
31 617 362 ₽
1-к, Тверитина, 60а
Геологическая9 мин
107 м² · Этаж 5 из 16
Новостройка, 4 кв. 2026
Продаётся 1-комнатная квартира в строящемся доме (4 очередь), срок сдачи: IV-кв. 2026, общей площадью 107.68 кв.м., на 5 этаже. Жилой комплекс ''Александровский сад'' находится в глубине квартала, в удалении от больших магистралей. Во дворе комплекса будет создан уникальный ландшафтный дизайн и декларирована зона, свободная от автомобилей. В ЖК ''Александровский сад'' представлена широкая размерная линейка квартир. В каждой квартире своя фишка'': от архитектурно-планировочных деталей (угловые окна, ванная с окном, прачечная), до эффективного баланса между продуманной функциональной планировки и стоимостью квадратного метра. В ''Александровском саду'' эффективная система видеонаблюдения, с контролем за внутренним и внешним периметром комплекса.
1/9
29 471 340 ₽
2-к, Тверитина, 60а
Геологическая9 мин
79 м² · Этаж 8 из 16
Новостройка, 4 кв. 2026
Продаётся 2-комнатная квартира в строящемся доме (4 очередь), срок сдачи: IV-кв. 2026, общей площадью 79.22 кв.м., на 8 этаже. Жилой комплекс ''Александровский сад'' находится в глубине квартала, в удалении от больших магистралей. Во дворе комплекса будет создан уникальный ландшафтный дизайн и декларирована зона, свободная от автомобилей. В ЖК ''Александровский сад'' представлена широкая размерная линейка квартир. В каждой квартире своя фишка'': от архитектурно-планировочных деталей (угловые окна, ванная с окном, прачечная), до эффективного баланса между продуманной функциональной планировки и стоимостью квадратного метра. В ''Александровском саду'' эффективная система видеонаблюдения, с контролем за внутренним и внешним периметром комплекса.
1/9
19 360 401 ₽
1-к, Тверитина, 60а
Геологическая9 мин
51 м² · Этаж 14 из 16
Новостройка, 4 кв. 2026
Продаётся 1-комнатная квартира в строящемся доме (4 очередь), срок сдачи: IV-кв. 2026, общей площадью 51.12 кв.м., на 14 этаже. Жилой комплекс ''Александровский сад'' находится в глубине квартала, в удалении от больших магистралей. Во дворе комплекса будет создан уникальный ландшафтный дизайн и декларирована зона, свободная от автомобилей. В ЖК ''Александровский сад'' представлена широкая размерная линейка квартир. В каждой квартире своя фишка'': от архитектурно-планировочных деталей (угловые окна, ванная с окном, прачечная), до эффективного баланса между продуманной функциональной планировки и стоимостью квадратного метра. В ''Александровском саду'' эффективная система видеонаблюдения, с контролем за внутренним и внешним периметром комплекса.
1/9
25 992 234 ₽
2-к, Тверитина, 60а
Геологическая9 мин
89 м² · Этаж 4 из 9
Новостройка, 4 кв. 2026
Продаётся 2-комнатная квартира в строящемся доме (4 очередь), срок сдачи: IV-кв. 2026, общей площадью 89.12 кв.м., на 4 этаже. Жилой комплекс ''Александровский сад'' находится в глубине квартала, в удалении от больших магистралей. Во дворе комплекса будет создан уникальный ландшафтный дизайн и декларирована зона, свободная от автомобилей. В ЖК ''Александровский сад'' представлена широкая размерная линейка квартир. В каждой квартире своя фишка'': от архитектурно-планировочных деталей (угловые окна, ванная с окном, прачечная), до эффективного баланса между продуманной функциональной планировки и стоимостью квадратного метра. В ''Александровском саду'' эффективная система видеонаблюдения, с контролем за внутренним и внешним периметром комплекса.
1/6
13 170 961 ₽
3-к, Зоологическая, 10.2 стр.
Юго-Западный, Верх-Исетский район
76 м² · Этаж 30 из 31
Новостройка, 4 кв. 2026
Продаётся 3-комнатная квартира в строящемся доме (Секция 2), срок сдачи: IV-кв. 2026, общей площадью 76.35 кв.м., на 30 этаже. Новый жилой комплекс ''Forum Park'' от застройщика ''Форум-Групп'' расположен по адресу: г. Екатеринбург, Зоологическая улица.
1/6
9 523 610 ₽
2-к, Зоологическая, 10.2 стр.
Юго-Западный, Верх-Исетский район
54 м² · Этаж 14 из 31
Новостройка, 4 кв. 2026
Продаётся 2-комнатная квартира в строящемся доме (Секция 2), срок сдачи: IV-кв. 2026, общей площадью 54.18 кв.м., на 14 этаже. Новый жилой комплекс ''Forum Park'' от застройщика ''Форум-Групп'' расположен по адресу: г. Екатеринбург, Зоологическая улица.
1/9
32 282 194 ₽
1-к, Тверитина, 60а
Геологическая9 мин
106 м² · Этаж 8 из 9
Новостройка, 4 кв. 2026
Продаётся 1-комнатная квартира в строящемся доме (4 очередь), срок сдачи: IV-кв. 2026, общей площадью 106.76 кв.м., на 8 этаже. Жилой комплекс ''Александровский сад'' находится в глубине квартала, в удалении от больших магистралей. Во дворе комплекса будет создан уникальный ландшафтный дизайн и декларирована зона, свободная от автомобилей. В ЖК ''Александровский сад'' представлена широкая размерная линейка квартир. В каждой квартире своя фишка'': от архитектурно-планировочных деталей (угловые окна, ванная с окном, прачечная), до эффективного баланса между продуманной функциональной планировки и стоимостью квадратного метра. В ''Александровском саду'' эффективная система видеонаблюдения, с контролем за внутренним и внешним периметром комплекса.
1/24
11 300 000 ₽
1-к, Механический переулок, 15/2 стр.
Проспект Космонавтов7 мин
60 м² · Этаж 7 из 8
Новостройка, 3 кв. 2026
Квартира с кухней-гостиной и одной спальней в Северном квартале. Особенности планировки: вид во двор, предчистовая отделка, терраса на крыше. квартиры в нашей базе: СКВ03.2-Ж6.7.3. ''Северный квартал'' расположен в квадрате улиц Стачек, Войкова, Каширской и переулка Ритслянда. Проект находится на тихой территории между крупными городскими магистралями: проспектом Космонавтов и улицей Старых Большевиков, в 5 минутах пешком от метро ''Проспект Космонавтов''. Помимо транспортной доступности район имеет развитую инфраструктуру: торговые центры, продуктовые магазины, аптеки, кафе, поликлиники, детские центры и другие повседневные сервисы рядом. Оживлённое уличное движение останется за пределами квартала, а внутри создается собственная природная среда с зонами для вечерних прогулок, расслабленного отдыха, спорта и игр. Между домов проходит широкий пешеходный бульвар с разнообразным ландшафтом. Он объединяет общественные пространства между кварталами и переходит в площадь-сквер с фонтаном. Проект благоустройства связывает приватные дворы кварталов, парковое пространство вокруг урбан-вилл, игровые комплексы для детей разных возрастов и спортивные площадки в единый ландшафт. Внутриквартальный двор тихий и спокойный. За счёт разной этажности и арок во дворе — много света. Здесь будет высажено до 40 видов растений — деревья, кустарники, цветы, злаковые травы и газон. Деревья привезут уже взрослыми со сформированной кроной. Растения цветут в разное время года, имеют разную плотность и высоту. Всё это сделано для того, чтобы двор был разнообразным и в каждое время года имел свой цвет. #2SObDF
1/23
17 120 000 ₽
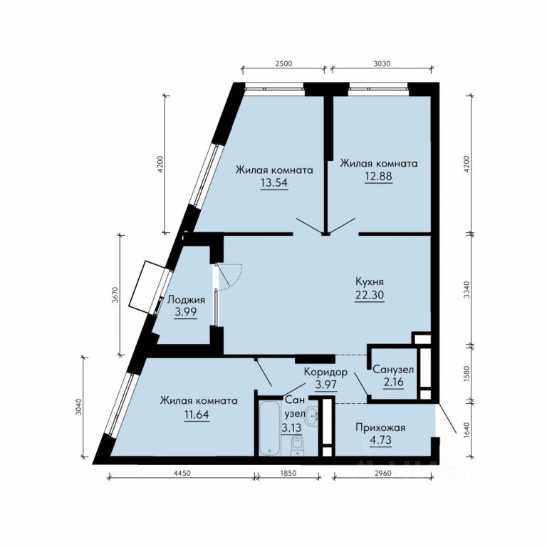
3-к, Шаумяна, 18 стр.
Чкаловская14 мин
81 м² · Этаж 2 из 7
Новостройка, 3 кв. 2026
Спешите оформить бронирование на этих условиях! Предложение ограничено! Стоимость квартиры указана со скидкой, ваша экономия составит 590,000 RUB. Звоните, мы вам все подробно расскажем! Квартира с кухней-гостиной и тремя спальнями в Южных кварталах. Особенности планировки: окна на две стороны, второй санузел, окна в пол, вид во двор, разнесённые спальни, предчистовая отделка, постирочная. квартиры в нашей базе: ЮК04-А1-8-8.2.5. Жилой район ''Южные кварталы'' расположен в границах улиц Московская, Шаумяна и Фурманова, недалеко от автовокзала. До центра города — 10 минут на автомобиле. До станции метро ''Чкаловская'' — 15 минут пешком. Рядом находится парк, школа олимпийского резерва, несколько гимназий, лицей, детские сады и городская больница. ''Южные кварталы'' — проект комплексного редевелопмента территории, разработанный архитекторами Брусники совместно с голландскими бюро. Он разделен на несколько частей, каждая из которых имеет свой характер. Вдоль оживленной Московской появятся более высокие и крупные дома. Профиль спокойной и очень зелёной Шаумяна сформируют кварталы среднеи этажности. В глубине района мы расположим урбан-виллы, чуть дальше — башни-доминанты. Последние будут играть роль визуальных акцентов и впоследствии станут символами этого места. Ближе к Фурманова мы организуем образовательный кластер. Его составят два детских сада на 300 и 325 мест и школа, рассчитанная на 1500 учеников. Школа будет иметь спортивную зону, которая станет доступна и жителям района. Свяжет территорию сеть общественных пространств. Её центральным звеном станет зелёный променад, проходящий сквозь весь район и соединяющий его с парком 50-летия ВЛКСМ. #24eVvS
1/23
5 900 000 ₽
1-к, Академика Ландау, 1/4 стр.
Ленинский район
34 м² · Этаж 3 из 9
Новостройка, 2 кв. 2027
Квартира с кухней-гостиной и одной спальней в Бруснике в Академическом. Особенности планировки: вид во двор, предчистовая отделка, балкон. квартиры в нашей базе: АКД05-Ж8.3.1. Квартал ''Брусника в Академическом'' расположен в границах улиц Ландау — Новая. Сегодня Академический — молодой, стремительно развивающийся район, обеспеченный всей необходимой инфраструктурой. С центром его связывают две магистральные улицы — Вильгельма де Геннина и Амундсена. Последняя в перспективе соединится с ЕКАДом, что позволит жителям быстрее выезжать из города. Согласно утвержденному проекту планировки территории в пешеходной доступности от квартала Брусники появятся две школы, рассчитанные на 1700 мест, и шесть детских садов. Рядом со строящимися домами расположены две крупные зелёные зоны — Юго-Западный лесопарк и Преображенский парк. В школах раиона совместно с учеными УрО РАН будет реализован проект ''Малая академия наук'', предпогагающий регулярные экскурсии в отраслевые институты и лаборатории, участие в научных конференциях и мастер-классах. Также в Академическом уже построены, теннисная академия и дворец дзюдо, крупные ТРЦ ''Краснолесье'' и ТРЦ ''Академический'', гипермаркет ''Лента'', в планах — организация ИT-кластера и новых филиалов НИИ. Камерные дворы квартала закрыты от машин. По нашим стандартам 70% их территории покрывает зелень. Деревья, кустарники и травы подобраны таким образом, чтобы в каждый сезон двор оставался красивым и имел свой цвет. Каждый двор разделён на зоны. В одной расположены детские площадки, в другой — места для спорта и тихого отдыха взрослых. Особенность ландшафта дворов — дождевые сады, снижающие нагрузку на ливневую канализацию. Они впитывают сток с крыш и тротуаров, фильтруют его в специально подобранном субстрате и отправляют в пруд. #zsOs5M
1/23
4 190 000 ₽
1-к, Таватуйская, 20/7 стр.
Старая Сортировка, Железнодорожный район
21 м² · Этаж 2 из 7
Новостройка, 2 кв. 2027
Студия в квартале ''Депо''. Особенности планировки: предчистовая отделка, балкон. квартиры в нашей базе: ДЕП07-Ж3.2.4. Квартал ''Депо'' расположен в активно развивающейся части Сортировки, на месте, где раньше был завод ''Электротранс''. Преимущества Сортировки — развитая инфраструктура. В пешей доступности — супермаркеты, остановки городского транспорта, поликлиники, детские сады, школы, гимназии, торговые центры, автоцентры, рынок с большим и доступным по стоимости выбором товаров, парк РЖД и парк с аттракционами Таганская Слобода. Квартал ''Депо'' расположен в границах улиц Пехотинцев — Таватуйская — Сортировочная — Новая (проектируется). Благоустройство квартала основано на трёх принципах. Первый — особое внимание к воде. Архитекторы Брусники создадут внутри застройки систему дождевых садов, которые будут фильтровать сток (в том числе с крыш зданий) и снижать нагрузку на ливневую канализацию . Второй принцип — разнообразие. Мы высадим на улицах ивы, липы, яблони разных сортов, спиреи, лапчатку и дерен, а во дворах — березы, липы, черёмухи, пузыреплодник, кизильник и манчжурский орех, который в Екатеринбурге почти не представлен. Третий принцип — зонирование. Центральный бульвар мы насытим площадками для игр детей и спокойного отдыха взрослых, на площади перед детским садом расположим окруженные деревьями плэйхабы, летние веранды кафе, открытое пространство с запоминающимся артом. #Z5c8aU
1/23
9 610 000 ₽
3-к, Таватуйская, 20/8 стр.
Старая Сортировка, Железнодорожный район
80 м² · Этаж 2 из 7
Новостройка, 2 кв. 2027
Торопитесь забронировать на этих условиях! Срок предложения ограничен! Стоимость квартиры указана со скидкой, ваша экономия составит 290,000 RUB. Информация по телефону, наши менеджеры вам все расскажут! Квартира с кухней-гостиной и тремя спальнями в квартале ''Депо''. Особенности планировки: окна на две стороны, второй санузел, гардеробная, вид во двор, разнесённые спальни, предчистовая отделка, мастер-спальня, балкон. квартиры в нашей базе: ДЕП04-Ж2.2.3. Квартал ''Депо'' расположен в активно развивающейся части Сортировки, на месте, где раньше был завод ''Электротранс''. Преимущества Сортировки — развитая инфраструктура. В пешей доступности — супермаркеты, остановки городского транспорта, поликлиники, детские сады, школы, гимназии, торговые центры, автоцентры, рынок с большим и доступным по стоимости выбором товаров, парк РЖД и парк с аттракционами Таганская Слобода. Квартал ''Депо'' расположен в границах улиц Пехотинцев — Таватуйская — Сортировочная — Новая (проектируется). Благоустройство квартала основано на трёх принципах. Первый — особое внимание к воде. Архитекторы Брусники создадут внутри застройки систему дождевых садов, которые будут фильтровать сток (в том числе с крыш зданий) и снижать нагрузку на ливневую канализацию . Второй принцип — разнообразие. Мы высадим на улицах ивы, липы, яблони разных сортов, спиреи, лапчатку и дерен, а во дворах — березы, липы, черёмухи, пузыреплодник, кизильник и манчжурский орех, который в Екатеринбурге почти не представлен. Третий принцип — зонирование. Центральный бульвар мы насытим площадками для игр детей и спокойного отдыха взрослых, на площади перед детским садом расположим окруженные деревьями плэйхабы, летние веранды кафе, открытое пространство с запоминающимся артом. #zSc85D
1/24
14 080 000 ₽
3-к, Гастелло, 5 стр.
Уктус, Чкаловский район
114 м² · Этаж 7 из 8
Новостройка, 4 кв. 2026
Квартира с кухней-гостиной и тремя спальнями в районе Шишимская горка. Особенности планировки: окна на две стороны, гардеробная, предчистовая отделка, мастер-спальня, терраса на крыше. квартиры в нашей базе: ШГР16-Ж3.7.5. ''Шишимская горка'' — район, состоящий из замкнутых кварталов переменной этажности и башен-доминант. Он расположен на Уктусе, в одной из старейших частей Екатеринбурга. Вокруг уже сформирована необходимая инфраструктура. Рядом — две крупных автомобильных развязки (объездная дорога и Кольцовский тракт), Уктусский лесопарк, торговый центр ''Глобус'', аквапарк, ледовая арена, океанариум, кинотеатр, школы и детские сады. До ближайшей станции метро — 15 минут на общественном транспорте. В основе каждого проекта — принцип mixed-use, который подразумевает объединение в пределах одной локации коммерческой, жилой и развлекательной функций. На первых этажах расположены коммерческие помещения: магазины, кафе, аптеки, спортивные центры и другие полезные сервисы. Между собой кварталы соединены широким пешеходным бульваром с игровыми и спортивными площадками, деревьями и кустарниками, привезенными из европейских питомников. Всего более 30 видов растений. Концепцию благоустройства архитекторы построили на принципах скандинавского натурализма, сочетающего в себе функциональность, простоту и сдержанность. Двор дома — ''Каньон'', это крупный парк, который связывает все очереди строительства и располагается на рельефе с перепадом до 40 метров. Каньон представляет собой каскад ландшафтных зон, связанных рампами и лестницами, которые зигзагом поднимаются в сторону горы Уктус. Стилистически и идеологически ландшафт выполнен в скандинавском стиле. #Zsta84
1/24
19 510 000 ₽
2-к, Печерская, 6
Уральская10 мин
83 м² · Этаж 4 из 24
Новостройка, 4 кв. 2026
Квартира с кухней-гостиной и двумя спальнями в квартале ''На Некрасова''. Особенности планировки: вид во двор, лоджия, предчистовая отделка, мастер-спальня, постирочная. квартиры в нашей базе: НКР02-Ж1.4.8. Квартал ''На Некрасова'' состоит из четырёх домов переменной высотности от 7 до 25 этажей с тихими дворами и подземным паркингом. Особенность квартала — общественные пространства и благоустройство нового уровня: городская площадь с фонтаном, центральный пешеходный бульвар, ландшафтный парк, камерные сады и зелёные кровли домов. Из окон квартир открывается вид на Исеть. В квартале спроектированы помещения под магазины, кафе, аптеки и соседский центр. Проект расположен в центре Екатеринбурга в границах улиц Печерская — Некрасова рядом с управлением железной дороги и крупной транспортной магистралью — улицей Челюскинцев. В пешей доступности — школа 208, сквер, санаторий, фитнес-центр с бассейном. В 10 минутах ходьбы находится станция метро ''Динамо'', Олимпийская набережная, Дворец игровых видов спорта, спортивный комплекс ''Динамо'' и киноконцертный театр ''Космос''. Особенность проекта — цепочка связанных общественных пространств. Новая площадь за зданием управления железной дороги переходит в бульвар и сквер. В центре площади — фонтан. На бульваре расположена детская площадка, спортивная зона и беседки-перголы для спокойного отдыха. Вход во двор организован через колоннаду. Планировочно он разделён на две части. Парадный партер с большим количеством стриженых растений, фонтанами, цветущими кустарниками и более ''домашняя'', уютная зона, где высажены деревья и низкорослые хвойные растения, многолетники. В центре двора — две детские площадки. #Z5OOTS
1/24
5 650 000 ₽
1-к, Механический переулок, 15/2 стр.
Проспект Космонавтов7 мин
22 м² · Этаж 3 из 8
Новостройка, 3 кв. 2026
Студия в Северном квартале. Особенности планировки: вид во двор, предчистовая отделка. квартиры в нашей базе: СКВ03.2-Ж7.3.3. ''Северный квартал'' расположен в квадрате улиц Стачек, Войкова, Каширской и переулка Ритслянда. Проект находится на тихой территории между крупными городскими магистралями: проспектом Космонавтов и улицей Старых Большевиков, в 5 минутах пешком от метро ''Проспект Космонавтов''. Помимо транспортной доступности район имеет развитую инфраструктуру: торговые центры, продуктовые магазины, аптеки, кафе, поликлиники, детские центры и другие повседневные сервисы рядом. Оживлённое уличное движение останется за пределами квартала, а внутри создается собственная природная среда с зонами для вечерних прогулок, расслабленного отдыха, спорта и игр. Между домов проходит широкий пешеходный бульвар с разнообразным ландшафтом. Он объединяет общественные пространства между кварталами и переходит в площадь-сквер с фонтаном. Проект благоустройства связывает приватные дворы кварталов, парковое пространство вокруг урбан-вилл, игровые комплексы для детей разных возрастов и спортивные площадки в единый ландшафт. Внутриквартальный двор тихий и спокойный. За счёт разной этажности и арок во дворе — много света. Здесь будет высажено до 40 видов растений — деревья, кустарники, цветы, злаковые травы и газон. Деревья привезут уже взрослыми со сформированной кроной. Растения цветут в разное время года, имеют разную плотность и высоту. Всё это сделано для того, чтобы двор был разнообразным и в каждое время года имел свой цвет. #zsObdw
  • 1
  • 2
  • 3
  • 4
  1. Недвижимость в Екатеринбурге
  2. Продажа
  3. Квартиры
  4. 39132 объявления

Может быть полезно

Ипотека

Узнайте за 10 минут, какой кредит вам одобрят банки

Подбор риелтора

Риелтор поможет купить или продать любую недвижимость

Журнал

«31 декабря сгорел мой дом». Дневник блогера, который восстанавливает сгоревший коттедж «31 декабря сгорел мой дом». Дневник блогера, который восстанавливает сгоревший коттедж
«Это были легкие города»: в Екатеринбурге ради строительства ЖК вырубили лес «Это были легкие города»: в Екатеринбурге ради строительства ЖК вырубили лес
От теории к практике: как квартира-студия угодила всем и сразу От теории к практике: как квартира-студия угодила всем и сразу
Как траншевая ипотека экономит семейный бюджет Как траншевая ипотека экономит семейный бюджет
Турниры отменили — стадионы остались. Что будет с недостроенными объектами? Турниры отменили — стадионы остались. Что будет с недостроенными объектами?
Читать все статьи
Продажа трехкомнатных квартир в новостройках в Екатеринбурге
  • по районам
  • Автовокзал
  • Академический
  • Верх-Исетский район
  • Железнодорожный район
  • Кировский район
  • Ленинский район
  • Октябрьский район
  • Орджоникидзевский район
  • Центр
  • Чкаловский район
  • Широкая Речка
  • по метро
  • Ботаническая
  • Чкаловская
  • Геологическая
  • Площадь 1905 года
  • Динамо
  • Уральская
  • Машиностроителей
  • Уралмаш
  • Проспект Космонавтов
По субъектам области
  • Зори мкр
  • Невьянск
  • Лечебный мкр
  • Вокзальный жилрайон
  • Екатеринбург
  • Университетский мкр
  • Южный мкр
  • 19-й кв-л
  • Втузгородок жилрайон
  • Химмаш жилрайон
  • Автовокзал жилрайон
  • Первоуральск
  • Кольцово жилрайон
  • Юго-Западный жилрайон
  • Уктус мкр
  • Краснолесье мкр
  • с. Балтым
  • Свердловская область
  • пос. Большой Исток
  • Сибирский мкр
  • Широкая Речка мкр
  • Горнозаводский жилрайон
  • Екатеринбург муниципальное образование
  • Центральный жилрайон
  • Эльмаш жилрайон
  • 22-й кв-л
  • Жилой Спутник-1 кв-л
  • Лесная сказка жилой квартал
  • Нижний Тагил
  • Богданович
  • Сухой Лог
  • Березовский городской округ
  • Арамиль
  • 15-й кв-л
  • Верхняя Пышма городской округ
  • Арамиль
  • Сысерть
  • № 8А.4 кв-л
  • Заречный
  • Дегтярск
  • Березовский
  • Среднеуральск городской округ
  • Южный жилрайон
  • Среднеуральск муниципальный округ
  • Уралмаш жилрайон
  • Пионерский мкр
  • Каменск-Уральский
  • Новый мкр
  • Кировград
  • Компрессорный жилрайон
  • Каменск-Уральский
  • пос. Большой Исток
  • Вторчермет жилрайон
  • Богданович
  • 25-й кв-л
  • Парковый мкр
  • Рудный мкр
  • Старая Сортировка мкр
  • с. Косулино
  • ВИЗ жилрайон
  • Комсомольский жилрайон
  • Дегтярск
  • Авангард мкр
  • с. Косулино
  • Первоуральск
  • Екатеринбург
  • Верхняя Пышма
  • пос. Трубный
  • УНЦ мкр
  • 45-й кв-л
  • 13-й кв-л
  • пос. Кирпичный
  • Ревда
  • Ревда
  • пос. Кирпичный
  • Пионерский жилрайон
  • Муринские Пруды мкр
  • Спутник-1 жилой квартал
  • пос. Кирпичный
  • Среднеуральск муниципальный округ
  • 20-й кв-л
  • Верхняя Пышма
  • Трилогия жилой квартал
  • Солнечный жилрайон
  • Семейный Дружный-2 кв-л
  • Зори мкр
  • Сортировочный жилрайон
  • Свердловская область
  • Культура жилой квартал
  • Культура жилой квартал
  • Заречный
  • Сухой Лог
  • Березовский муниципальный округ
  • 12-й кв-л
  • с. Балтым
  • 14-й кв-л
  • Золотая горка кп
  • пос. Совхозный
  • пос. Северка
  • Солнечный кп
  • Академический мкр
  • пос. Трубный
  • Уктус жилрайон
Похожий тип квартиры
  • Все квартиры
  • 1-комнатные
  • 2-комнатные
  • 4-комнатные

Некоторые материалы настоящего раздела могут содержать информацию, запрещенную для детей, не достигших шести лет.

Информация о возрастных ограничениях в отношении информационной продукции, подлежащая распространению на основании норм Федерального закона «О защите детей от информации, причиняющей вред их здоровью и развитию».

О компанииСправочный центрВакансииПрайс-лист
© ООО «Н1.РУ»  Правила использования

Некоторые материалы настоящего раздела могут содержать информацию, запрещенную для детей, не достигших шести лет.

Информация о возрастных ограничениях в отношении информационной продукции, подлежащая распространению на основании норм Федерального закона «О защите детей от информации, причиняющей вред их здоровью и развитию».

Новостройки
Студии
Однокомнатные
Двухкомнатные
Трехкомнатные
Четырехкомнатные
Многокомнатные
Каталоги
Выделение цветом
Спецпредложение
Топ
Турбо
Вторичка
Однокомнатные
Комнаты
Студии
Коттеджи
Дома
Аренда недвижимости
Квартиры
Комнаты
Студии
Коттеджи
Дома
Города
Архангельск
Екатеринбург
Красноярск
Новосибирск
Омск
Пермь
Тюмень
Челябинск
Все города
Карта сайта
 Купите трехкомнатную квартиру в Екатеринбурге - 39 132 объявления в каталоге жилой недвижимости на N1. Средняя цена продажи или покупки жилья составляет 8,6 млн ₽. Покупайте трехкомнатные квартиры недорого на сайте N1.ru.