Если цена в объявлении изменится, мы сразу сообщим вам об этом на электронную почту.
Нажимая «Подписаться», вы соглашаетесь с правилами.
продам 2-к, Шаумяна, 18 стр.12 700 000 ₽
24 фев
Дата публикации объявления
Обн. вчера
Дата обновления объявления
9
Количество просмотров (+ просмотры за сегодня)
185 944 ₽/м²
Чистая продажа
Термин "Чистая продажа" означает, что в квартире никто не прописан или
есть куда выписаться и вывезти вещи. Это лучший вариант для покупателя.
Вероятность срыва сделки минимальна.
Застройщик - Брусника. Специализированный застройщик, ООО. Проектная декларация опубликована на сайте ekaterinburg.brusnika.ru
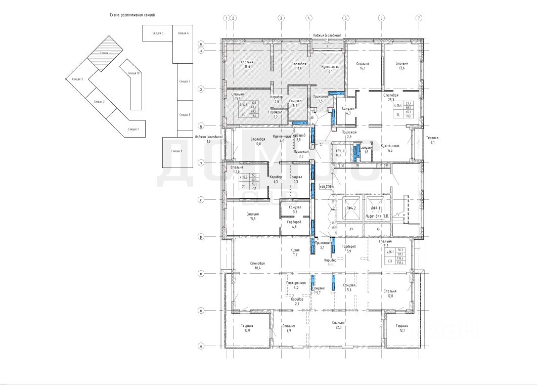
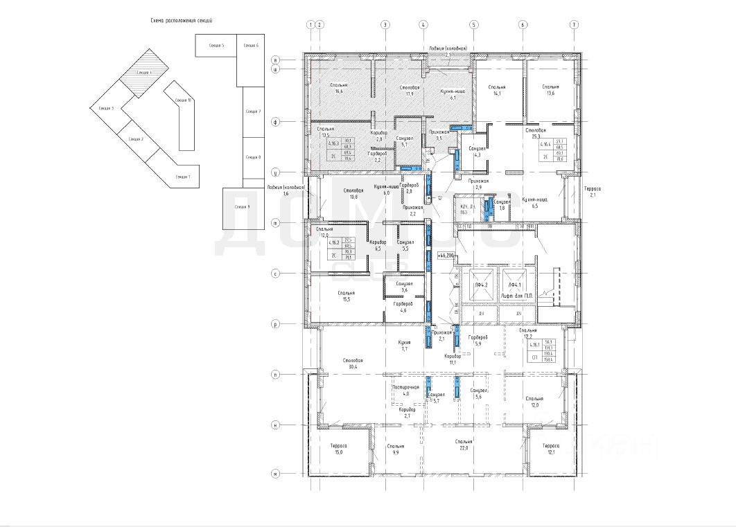
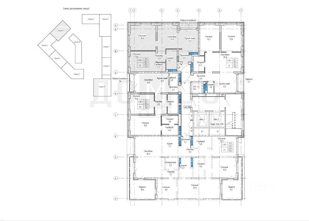
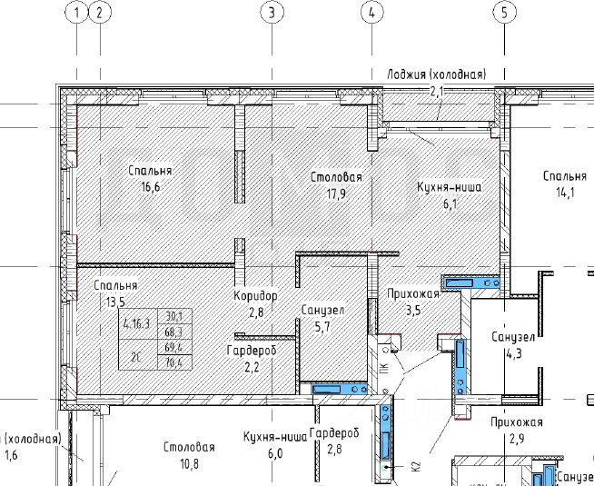
Продаётся двухкомнатная квартира в строящемся четвертом доме, в ЖК ''Южные кварталы''. Срок сдачи дома в эксплуатацию III квартал 2026 год. Квартира расположена на 16 этаже секции 4. Общая проектная площадь квартиры составляет 70,4 кв.м. и состоит из суммы площади всех частей квартиры: - Лоджия (холодная) 2,10 кв.м. - Столовая 17,90 кв.м. - Кухня-ниша 6,10 кв.м. - Прихожая 3,50 кв.м. - Коридор 2,80 кв.м. - Гардероб 2,20 кв.м. - Спальня 13,50 кв.м. - Спальня 16,60 кв.м. - Санузел 5,70 кв.
Продаётся двухкомнатная квартира в строящемся четвертом доме, в ЖК ''Южные кварталы''. Срок сдачи дома в эксплуатацию III квартал 2026 год. Квартира расположена на 16 этаже секции 4. Общая проектная площадь квартиры составляет 70,4 кв.м. и состоит из суммы площади всех частей квартиры: - Лоджия (холодная) 2,10 кв.м. - Столовая 17,90 кв.м. - Кухня-ниша 6,10 кв.м. - Прихожая 3,50 кв.м. - Коридор 2,80 кв.м. - Гардероб 2,20 кв.м. - Спальня 13,50 кв.м. - Спальня 16,60 кв.м. - Санузел 5,70 кв.м, Общая площадь квартиры, подлежащая после ввода жилого дома в эксплуатацию, при постановке квартиры на кадастровый учет, внесению в Единый государственный реестр недвижимости (фактическая площадь) не включает площадь лоджии и составляет 68,3 кв.м. КОМПАНИЯ ''ДОМОС'' ГАРАНТИРУЕТ ФИНАНСОВУЮ БЕЗОПАСНОСТЬ ДЛЯ НАШИХ КЛИЕНТОВ! ЗВОНИТЕ, ОТВЕЧУ НА ВСЕ ВОПРОСЫ. ID объекта в нашей базе: 14033