Если цена в объявлении изменится, мы сразу сообщим вам об этом на электронную почту.
Нажимая «Подписаться», вы соглашаетесь с правилами.
продам коттедж, Двинская, 24120 000 000 ₽
15 фев
Дата публикации объявления
Обн. 11 мар
Дата обновления объявления
52
Количество просмотров (+ просмотры за сегодня)
139 535 ₽/м²
Чистая продажа
Термин "Чистая продажа" означает, что в квартире никто не прописан или
есть куда выписаться и вывезти вещи. Это лучший вариант для покупателя.
Вероятность срыва сделки минимальна.
Этажей4
Площадь участка10 соток
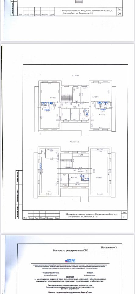
Общая площадь860 м2
Материал домакирпич
ЭлектричествоЕсть
Газоснабжениецентральное
Двинская, 24 | Екатеринбург | 862 м² | участок 10 соток | у озера
Продаётся большой статусный коттедж в центре Академического района Екатеринбурга — 862 м² на земельном участке 1000 м², в уникальной локации рядом с озером.
Объект изначально создавался как просторный капитальный дом высокого класса и в дальнейшем использовался под детский центр по присмотру и уходу за детьми на 60 воспитанников. При этом в доме никто не проживал, что делает его особенно интересным как для личного использования, так и для инвестиционного или корпоративного сценария.
Двинская, 24 | Екатеринбург | 862 м² | участок 10 соток | у озера
Продаётся большой статусный коттедж в центре Академического района Екатеринбурга — 862 м² на земельном участке 1000 м², в уникальной локации рядом с озером.
Объект изначально создавался как просторный капитальный дом высокого класса и в дальнейшем использовался под детский центр по присмотру и уходу за детьми на 60 воспитанников. При этом в доме никто не проживал, что делает его особенно интересным как для личного использования, так и для инвестиционного или корпоративного сценария.
Преимущества объекта:
— престижная локация в центре Академического района — формат большого капитального коттеджа ИЖС — площадь здания 862 м² — земельный участок 10 соток — расположение у озера — чистовая отделка, хорошее состояние — внутри бассейн и сауна — объект можно адаптировать под личную резиденцию, частную усадьбу, семейный дом, wellness-формат, образовательный проект, дом заботы или представительскую резиденцию
Дом подойдёт тем, кто ищет редкий по масштабу объект в городской черте Екатеринбурга — с возможностью использовать его как для частной жизни, так и для серьёзного проекта.
Возможные сценарии использования:
— личное имение / семейная резиденция — частный детский или образовательный центр — wellness / реабилитационный / оздоровительный формат — дом долголетия или центр заботы — представительский корпоративный объект
Индивидуальный показ организуется по предварительному согласованию.