Если цена в объявлении изменится, мы сразу сообщим вам об этом на электронную почту.
Нажимая «Подписаться», вы соглашаетесь с правилами.
продам таунхаус, Кашино12 200 000 ₽
5 фев
Дата публикации объявления
Обн. вчера
Дата обновления объявления
21
(+1)
Количество просмотров (+ просмотры за сегодня)
Топ
59 892 ₽/м²
Чистая продажа
Термин "Чистая продажа" означает, что в квартире никто не прописан или
есть куда выписаться и вывезти вещи. Это лучший вариант для покупателя.
Вероятность срыва сделки минимальна.
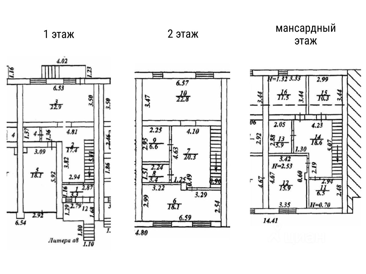
Этажей3
Площадь участка3 сотки
Общая площадь203,7 м2
ЭлектричествоЕсть
Газоснабжениецентральное
В продаже трёхуровневый таунхаус 203,7 м² в 40 минутах езды от центра Екатеринбурга! Доступно приобретение в рассрочку от 10,5%* до 12 месяцев.
Материалы дома: • стены - газоблок с утеплителем • кирпичные межкомнатные перегородки • кровля из металлочерепицы • пластиковые окна с двухкамерным стеклопакетом • цоколь отделан натуральным лемезитом.
Косметический ремонт: •обои под покраску •на полу в комнатах и коридоре - ламинат •пол в санузлах и на кухне выполнен из керамогранита •металлическая входная сейф-дверь.
В продаже трёхуровневый таунхаус 203,7 м² в 40 минутах езды от центра Екатеринбурга! Доступно приобретение в рассрочку от 10,5%* до 12 месяцев.
Материалы дома: • стены - газоблок с утеплителем • кирпичные межкомнатные перегородки • кровля из металлочерепицы • пластиковые окна с двухкамерным стеклопакетом • цоколь отделан натуральным лемезитом.
Косметический ремонт: •обои под покраску •на полу в комнатах и коридоре - ламинат •пол в санузлах и на кухне выполнен из керамогранита •металлическая входная сейф-дверь.
При продаже остается: обеденный стол, кровать, три шкафа, прикроватные тумбы, два рабочих стола, тумба под ТВ, телевизор, стиральная машина, два дивана, стеллаж, приборы учета).
Вдоль таунхаусов проложена асфальтированная дорога с удобным заездом. У входа каждой квартиры - терраса и кладовая. С задней стороны предусмотрен выход на собственный участок, где можно организовать зону для мангала и отдыха.
Доступная инфраструктура: • на въезде в посёлок расположены Пятерочка и Строительный двор • продовольственные магазины в Кашино • остановка школьного автобуса на территории КП • остановка междугороднего транспорта в 15 минутах ходьбы • в 10 минутах езды конный клуб ''Белая лошадь''.
Предложение от собственника. Возможен trade-in в Екатеринбурге (жилая недвижимость).
*Условия рассрочки: ПВ 10 % - рассрочка под 14,5 % ПВ 15 % - рассрочка под 13,5 % ПВ 20 % - рассрочка под 12,5 % ПВ 25 % - рассрочка под 11,5 % ПВ 30 % - рассрочка под 10,5 %.