Если цена в объявлении изменится, мы сразу сообщим вам об этом на электронную почту.
Нажимая «Подписаться», вы соглашаетесь с правилами.
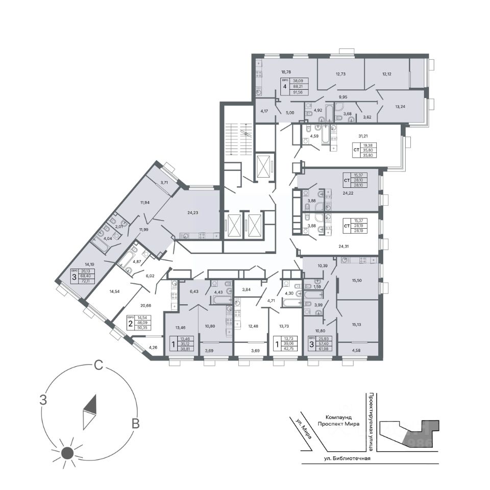
продам 1-к, Библиотечная, 4110 202 400 ₽
4 фев
Дата публикации объявления
Обн. 23 мая
Дата обновления объявления
3
Количество просмотров (+ просмотры за сегодня)
Спецпредложение
Турбо x8
202 630 ₽/м²
Чистая продажа
Термин "Чистая продажа" означает, что в квартире никто не прописан или
есть куда выписаться и вывезти вещи. Это лучший вариант для покупателя.
Вероятность срыва сделки минимальна.
Застройщик - Специализированный застройщик «Первостроитель», ООО. Проектная декларация опубликована на сайте наш.дом.рф
Библиотечная, 41 - финальный дом микрорайона Университетский, современный проект комфорт-класса, отражающий высокие стандарты качества компании 'Первостроитель'. Дом органично вписался в микрорайон, став его естественным продолжением и унаследовав все преимущества: развитую социальную и коммерческую инфраструктуру, комфортную городскую среду и транспортную доступность.
Библиотечная, 41 - финальный дом микрорайона Университетский, современный проект комфорт-класса, отражающий высокие стандарты качества компании 'Первостроитель'. Дом органично вписался в микрорайон, став его естественным продолжением и унаследовав все преимущества: развитую социальную и коммерческую инфраструктуру, комфортную городскую среду и транспортную доступность. - 2 секции - 24 жилых этажа - 3 лифта в каждой секции - 15 вариантов планировочных решений - Классические и евро-планировки - Единый парадный холл - Колясочная и гостевой санузел на первом этаже - Безопасность: видеонаблюдение, контроль доступа, видеодомофония, BLE-метки, мобильное приложение - Подземный паркинг и кладовые - Приточно-вытяжная вентиляция с рекуперацией - Территория для прогулок и отдыха, зелёный пешеходный бульвар, детские и спортивные площадки - Привилегии 'Клуба Своих' в рамках экосистемы 'Первостроитель' В секции Б представлены квартиры с отделкой 'под ключ'. Жилые комнаты: - Натяжной потолок, белый матовый - Обои под покраску - Ламинат 32 класс - Плинтус пластиковый - Межкомнатные двери ПВХ - Розетки и выключатели Санузлы: - Натяжной потолок, белый матовый - Керамогранит, серый светлый - Двери - Розетки и выключатели - Раковина и унитаз в одном из санузлов