Если цена в объявлении изменится, мы сразу сообщим вам об этом на электронную почту.
Нажимая «Подписаться», вы соглашаетесь с правилами.
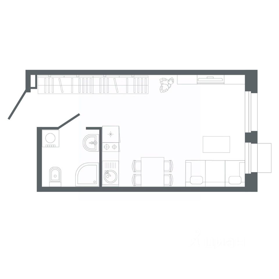
продам 1-к, Библиотечная, 416 554 700 ₽
4 фев
Дата публикации объявления
Обн. вчера
Дата обновления объявления
4
Количество просмотров (+ просмотры за сегодня)
Спецпредложение
Турбо x8
233 263 ₽/м²
Чистая продажа
Термин "Чистая продажа" означает, что в квартире никто не прописан или
есть куда выписаться и вывезти вещи. Это лучший вариант для покупателя.
Вероятность срыва сделки минимальна.
Застройщик - Специализированный застройщик «Первостроитель», ООО. Проектная декларация опубликована на сайте наш.дом.рф
Библиотечная, 41 финальный дом микрорайона Университетский, современный проект комфорт-класса, отражающий высокие стандарты качества компании ''Первостроитель''. Дом органично вписался в микрорайон, став его естественным продолжением и унаследовав все преимущества: развитую социальную и коммерческую инфраструктуру, комфортную городскую среду и транспортную доступность.
Библиотечная, 41 финальный дом микрорайона Университетский, современный проект комфорт-класса, отражающий высокие стандарты качества компании ''Первостроитель''. Дом органично вписался в микрорайон, став его естественным продолжением и унаследовав все преимущества: развитую социальную и коммерческую инфраструктуру, комфортную городскую среду и транспортную доступность. - 2 секции
- 24 жилых этажа
- 3 лифта в каждой секции
- 15 вариантов планировочных решений
- Классические и евро-планировки
- Единый парадный холл
- Колясочная и гостевой санузел на первом этаже
- Безопасность: видеонаблюдение, контроль доступа, видеодомофония, BLE-метки, мобильное приложение
- Подземный паркинг и кладовые
- Приточно-вытяжная вентиляция с рекуперацией
- Территория для прогулок и отдыха, зелёный пешеходный бульвар, детские и спортивные площадки
- Привилегии ''Клуба Своих'' в рамках экосистемы ''Первостроитель'' В секции Б представлены квартиры с отделкой ''под ключ''. Жилые комнаты: