Если цена в объявлении изменится, мы сразу сообщим вам об этом на электронную почту.
Нажимая «Подписаться», вы соглашаетесь с правилами.
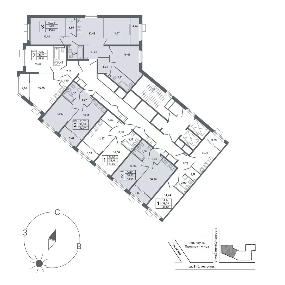
продам 1-к, Библиотечная, 417 857 000 ₽
4 фев
Дата публикации объявления
Обн. 22 мая
Дата обновления объявления
2
Количество просмотров (+ просмотры за сегодня)
Топ
Турбо x4
186 893 ₽/м²
Чистая продажа
Термин "Чистая продажа" означает, что в квартире никто не прописан или
есть куда выписаться и вывезти вещи. Это лучший вариант для покупателя.
Вероятность срыва сделки минимальна.
Застройщик - Специализированный застройщик «Первостроитель», ООО. Проектная декларация опубликована на сайте наш.дом.рф
Библиотечная, 41 - финальный дом микрорайона Университетский, современный проект комфорт-класса, отражающий высокие стандарты качества компании 'Первостроитель'. Дом органично вписался в микрорайон, став его естественным продолжением и унаследовав все преимущества: развитую социальную и коммерческую инфраструктуру, комфортную городскую среду и транспортную доступность.
Библиотечная, 41 - финальный дом микрорайона Университетский, современный проект комфорт-класса, отражающий высокие стандарты качества компании 'Первостроитель'. Дом органично вписался в микрорайон, став его естественным продолжением и унаследовав все преимущества: развитую социальную и коммерческую инфраструктуру, комфортную городскую среду и транспортную доступность. - 2 секции - 24 жилых этажа - 3 лифта в каждой секции - 15 вариантов планировочных решений - Евро-планировки - Единый парадный холл - Колясочная и гостевой санузел на первом этаже - Безопасность: видеонаблюдение, контроль доступа, видеодомофония, BLE-метки, мобильное приложение - Подземный паркинг и кладовые - Приточно-вытяжная вентиляция с рекуперацией - Территория для прогулок и отдыха, зелёный пешеходный бульвар, детские и спортивные площадки - Привилегии 'Клуба Своих' в рамках экосистемы 'Первостроитель' В секции А представлены квартиры с отделкой 'под чистовую'. Отделка под чистовую — удобный формат для тех, кто ценит своё время и хочет создать интерьер по своему вкусу. Все трудоёмкие черновые работы выполнены, остаётся выбрать только финишные покрытия. - выровненные стены - пятикамерный ПВХ профиль, двухкамерный стеклопакет - детский замок на каждой створке
Стоимость указана при условии 100% оплаты - подоконник из пластика белого цвета - выравнивающая стяжка пола с шумоизоляцией - горизонтальная разводка отопления - раковина и унитаз в одном из санузлов - радиаторы отопления с терморегулятором - разводка электрики - электрика по принципу 'умной планировки' кухни - приточно-вытяжная вентиляция с рекуперацией, выполнена разводка воздуховодов по квартире - на входе металлическая сейф-дверь