Если цена в объявлении изменится, мы сразу сообщим вам об этом на электронную почту.
Нажимая «Подписаться», вы соглашаетесь с правилами.
продам 3-к, Библиотечная, 4116 758 000 ₽
4 фев
Дата публикации объявления
Обн. вчера
Дата обновления объявления
1
Количество просмотров (+ просмотры за сегодня)
Топ
Турбо x4
173 245 ₽/м²
Чистая продажа
Термин "Чистая продажа" означает, что в квартире никто не прописан или
есть куда выписаться и вывезти вещи. Это лучший вариант для покупателя.
Вероятность срыва сделки минимальна.
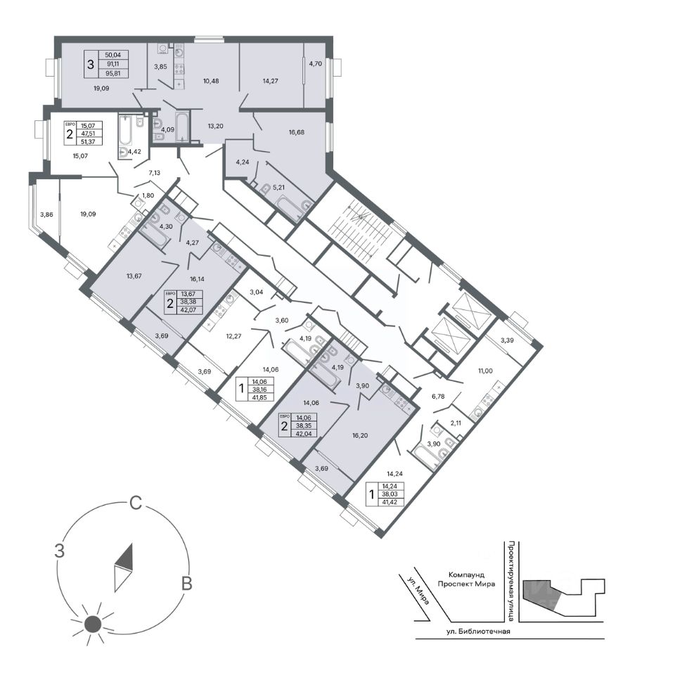
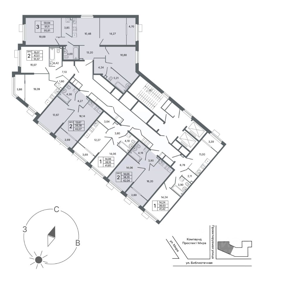
Квартира
Общая площадь96,73 м2
Жилая площадь51 м2
Кухня10,5 м2
Количество лоджий1
Тип собственностисвидетельство о праве собственности
Застройщик - Специализированный застройщик «Первостроитель», ООО. Проектная декларация опубликована на сайте наш.дом.рф
Библиотечная, 41 финальный дом микрорайона Университетский, современный проект комфорт-класса, отражающий высокие стандарты качества компании ''Первостроитель''. Дом органично вписался в микрорайон, став его естественным продолжением и унаследовав все преимущества: развитую социальную и коммерческую инфраструктуру, комфортную городскую среду и транспортную доступность.
Библиотечная, 41 финальный дом микрорайона Университетский, современный проект комфорт-класса, отражающий высокие стандарты качества компании ''Первостроитель''. Дом органично вписался в микрорайон, став его естественным продолжением и унаследовав все преимущества: развитую социальную и коммерческую инфраструктуру, комфортную городскую среду и транспортную доступность. - 2 секции
- 24 жилых этажа
- 3 лифта в каждой секции
- 15 вариантов планировочных решений
- Классические и евро-планировки
- Единый парадный холл
- Колясочная и гостевой санузел на первом этаже
- Безопасность: видеонаблюдение, контроль доступа, видеодомофония, BLE-метки, мобильное приложение
- Подземный паркинг и кладовые
- Приточно-вытяжная вентиляция с рекуперацией
- Территория для прогулок и отдыха, зелёный пешеходный бульвар, детские и спортивные площадки
- Привилегии ''Клуба Своих'' в рамках экосистемы ''Первостроитель'' В секции А представлены квартиры с отделкой ''под чистовую''. Отделка под чистовую — удобный формат для тех, кто ценит своё время и хочет создать интерьер по своему вкусу. Все трудоёмкие черновые работы выполнены, остаётся выбрать только финишные покрытия. - выровненные стены