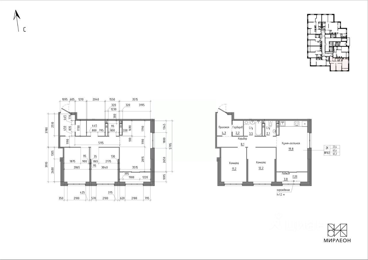
Планировка выстроена вокруг объединенного пространства кухни и гостиной, где каждая зона сохраняет свое функциональное назначение.
Ключевое отличие планировки дополнительное окно в кухне-гостиной. Свет и глубина пространства ощущаются уже при входе.
Прихожая с гардеробной сразу снимает вопрос хранения. Две изолированные спальни подходят как для семейного сценария, так и для организации рабочего пространства. Раздельный санузел упрощает повседневные сценарии, а теплая лоджия добавляет еще одну жилую зону для круглогодичного использования.
Чтобы записаться на просмотр, свяжитесь с нами подберем удобное время.












