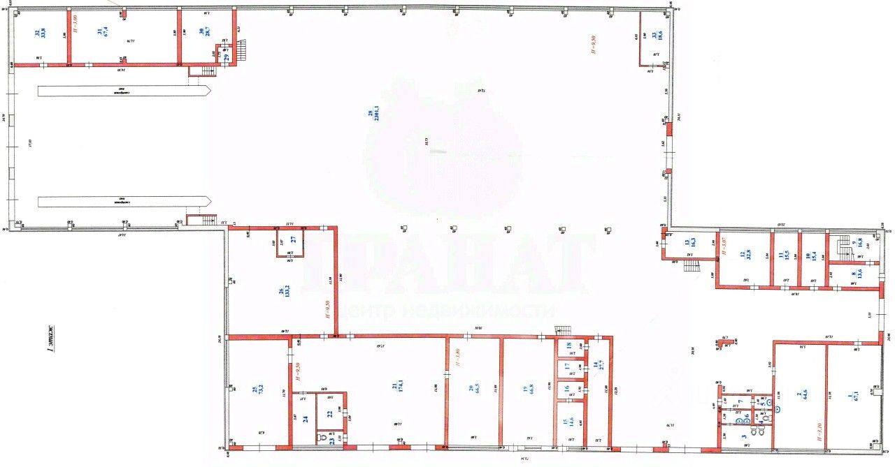
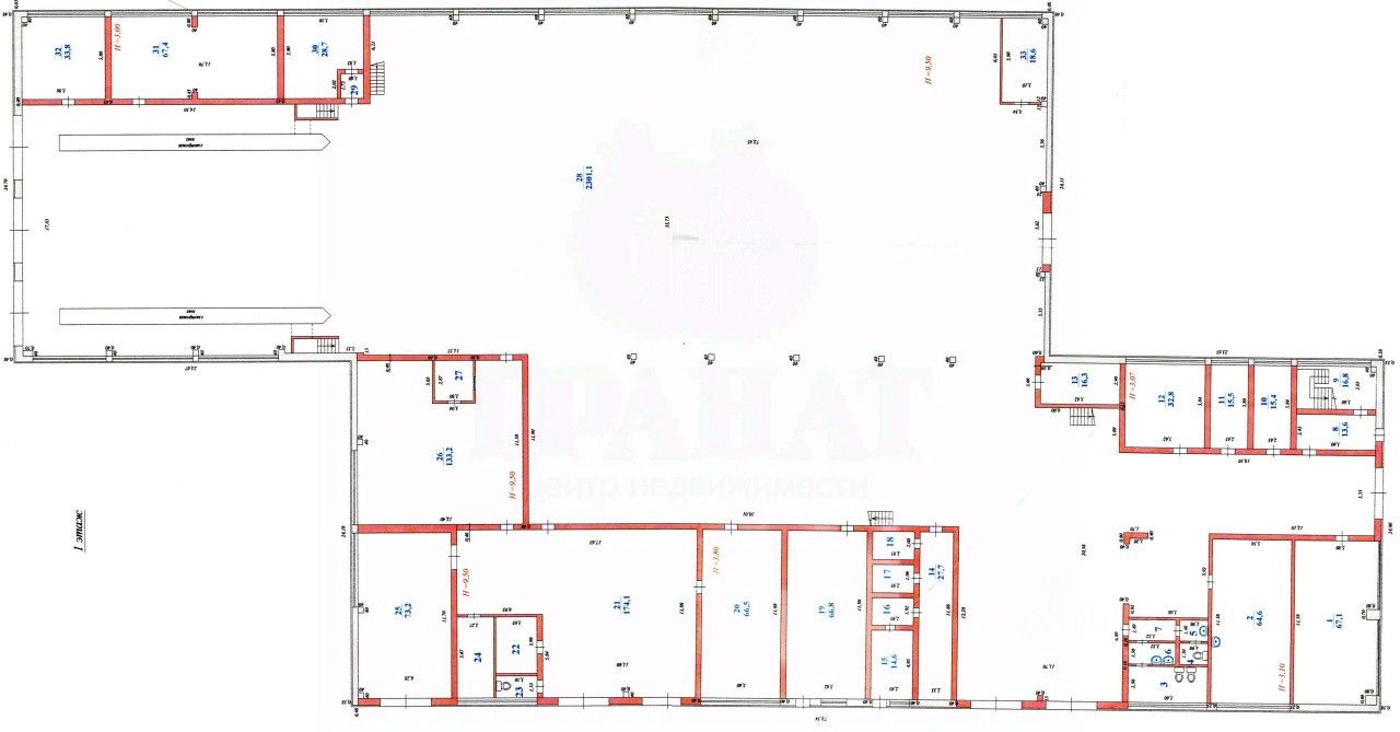
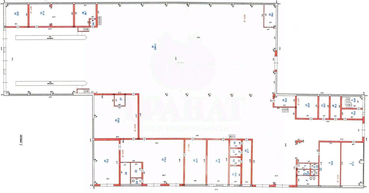
Продается действующее промышленное здание, с арендаторами, площадью 4000 кв. м., находящееся на земельном участке 8500 кв. м. в 30 минутах от Екатеринбурга по трассе М12. Три километра до федеральной трассы. Здание капитальное, состоит из двух пролетов, длиной 72 и шириной 24 метра каждый. Стоит на основании из свайного поля и ленточного фундамента. Полы железобетонные, покрытие мраморная крошка. Несущее конструкции из железобетонных колон, с шагом в 6 метров, на которых стоят железобетонные фермы длиной 24 метра. Стены из утепленных блоков и кирпича. Расстояние от пола до края фермы 6 метров, до потолка 9,5 метра. Кровля выполнена из железобетонных плит с утеплителем керамзит, само покрытие состоит из двух слоев, первый рубероид, второй ПВХ мембрана по американской технологии.
Продается действующее промышленное здание, с арендаторами, площадью 4000 кв. м., находящееся на земельном участке 8500 кв. м. в 30 минутах от Екатеринбурга по трассе М12. Три километра до федеральной трассы. Здание капитальное, состоит из двух пролетов, длиной 72 и шириной 24 метра каждый. Стоит на основании из свайного поля и ленточного фундамента. Полы железобетонные, покрытие мраморная крошка. Несущее конструкции из железобетонных колон, с шагом в 6 метров, на которых стоят железобетонные фермы длиной 24 метра. Стены из утепленных блоков и кирпича. Расстояние от пола до края фермы 6 метров, до потолка 9,5 метра. Кровля выполнена из железобетонных плит с утеплителем керамзит, само покрытие состоит из двух слоев, первый рубероид, второй ПВХ мембрана по американской технологии. Фасад - металлический сайдинг. Окна из алюминия с двойным остеклением, ворота для въезда грузового транспорта. Водоснабжение-скважина. Отопление, канализация, электроэнергия централизованное. Возможность подключения: Газ до 800 куб. м. в час. Электроэнергия до 35 МВт. ID объекта в нашей базе: 18370