Застройщик - Специализированный застройщик «Новый Дом», ООО. Проектная декларация опубликована на сайте наш.дом.рф
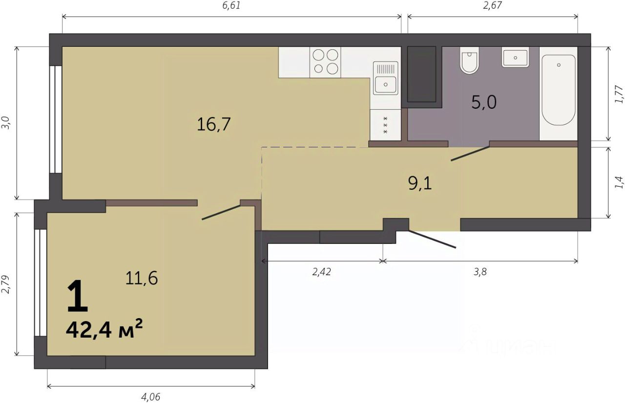
Продаётся 1-комнатная квартира в строящемся доме (Секция 1.1), срок сдачи: I-кв. 2028, общей площадью 42.4 кв.м., на 7 этаже. Новый жилой комплекс ''Парк Культуры'' от застройщика ''СЗ Новый Дом'' расположен по адресу: г. Екатеринбург, Базовый переулок.