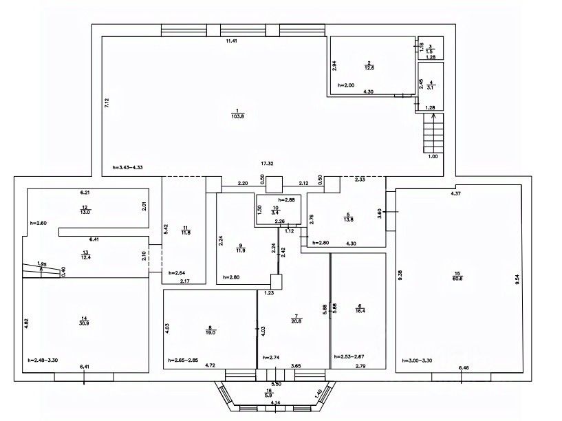
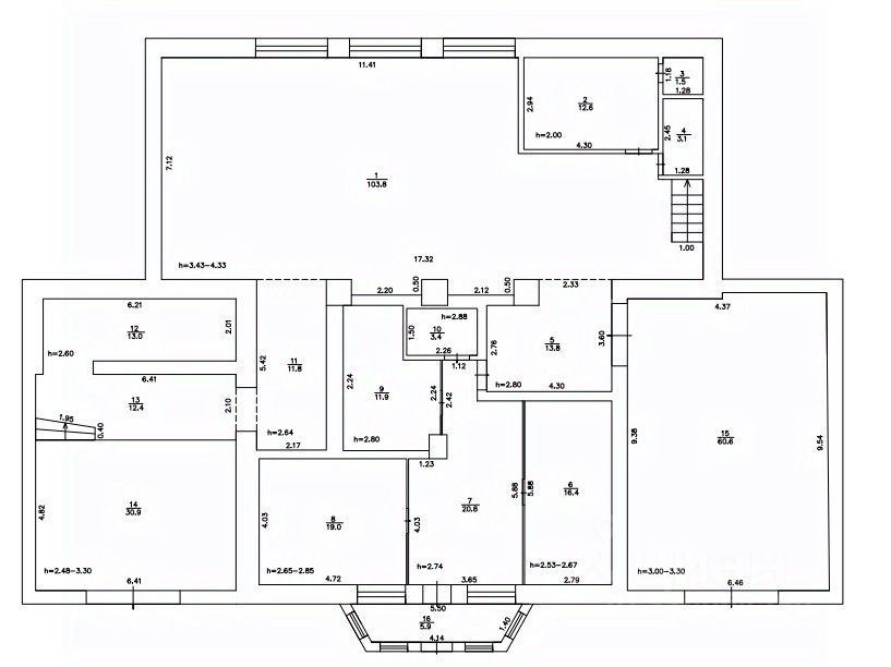
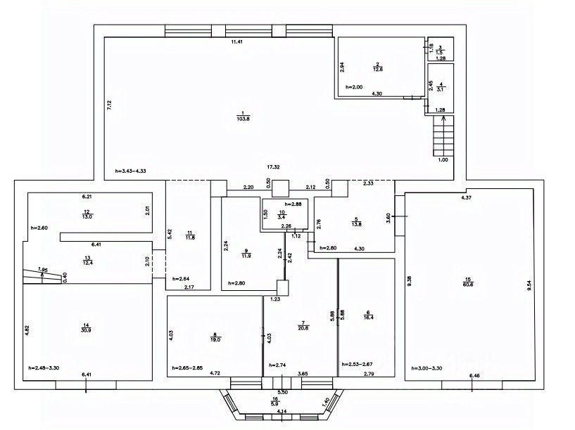
Отдельно стоящее здание общей площадью 356 кв.м
Земельный участок в собственности
Удобная транспортная доступность выезд на ЕКАД
Парковка для автомобилей
Возможно использование под любой вид деятельности
Коммуникации:
электричество - 40 кВт
скважина
канализация централизованная
отопление от газового котла
Показы в любой день по предварительной договоренности.
ID объекта в нашей базе: 785










