В избранном
В избранное
Пожаловаться
Напечатать
Следить за ценой

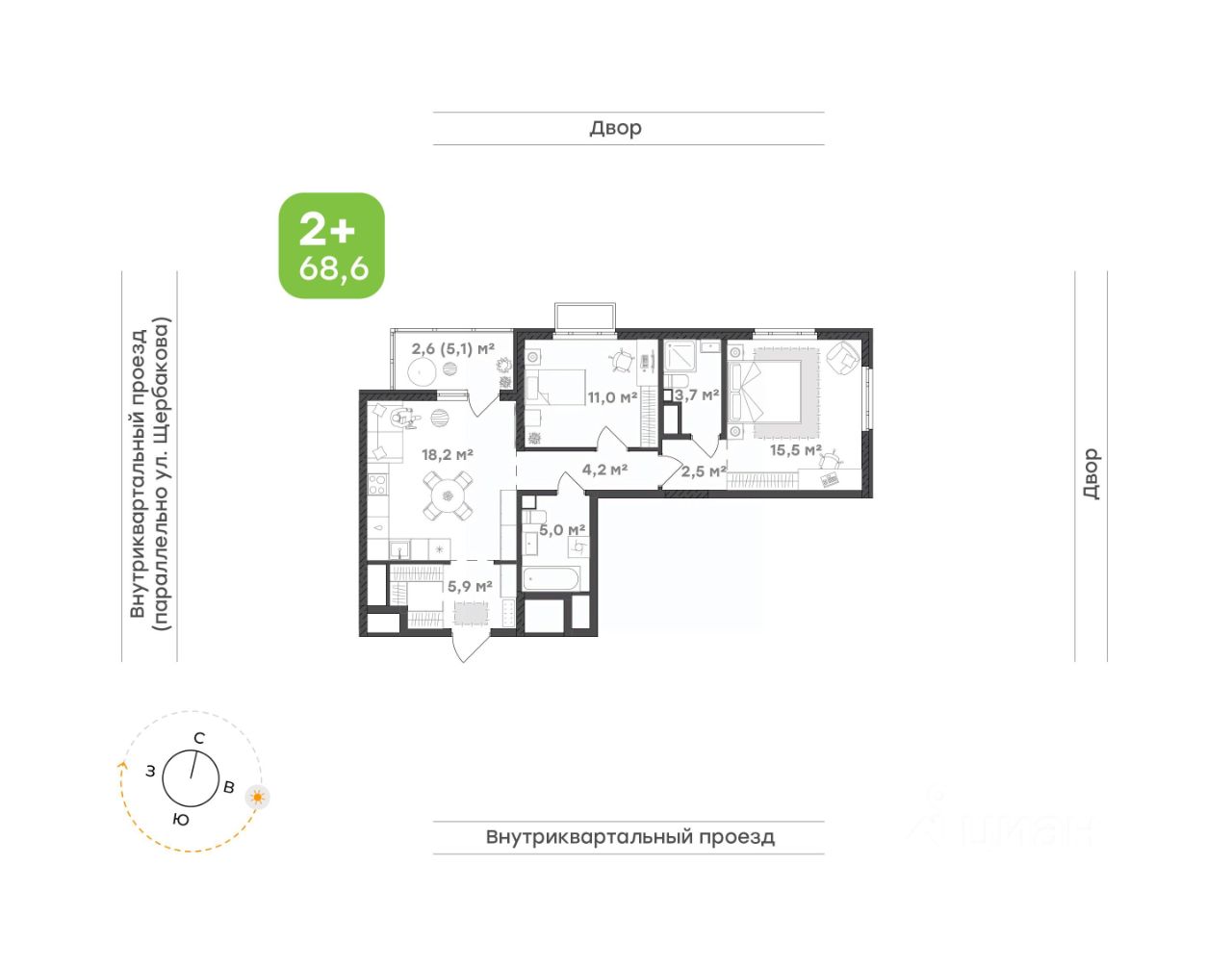
продам 2-к, Щербакова, 138 стр.10 335 800 ₽

21 янв
Обн. сегодня
150 668 ₽/м²
  • Чистая продажа