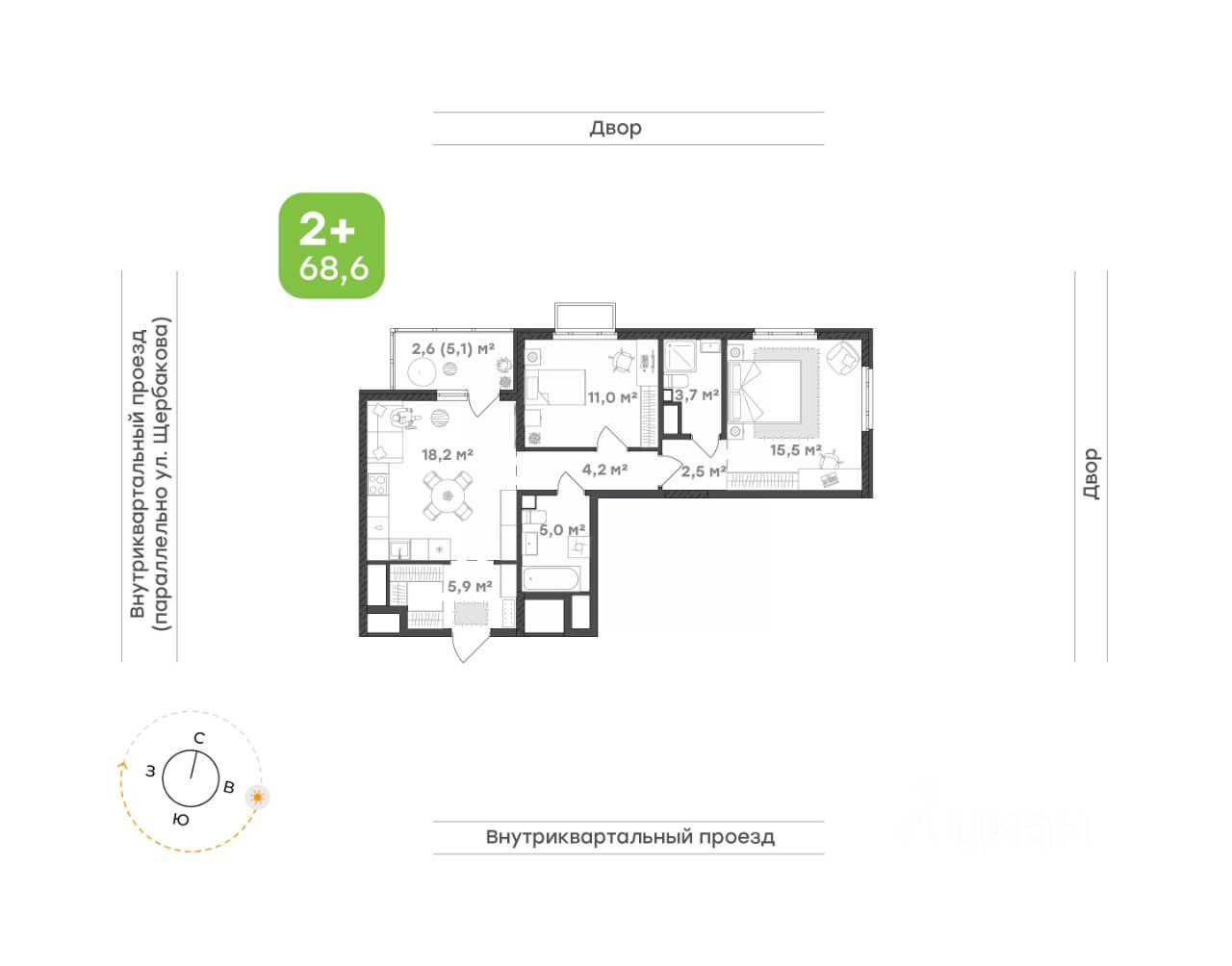
Квартира для семей, которые ценят комфорт и моменты объединения
Просторная кухня-гостиная объединяет зону для кулинарных экспериментов и уютное пространство для общения. Выход на балкон наполняют комнату светом, формируя ощущение свободы и уюта
Отдельная мастер-спальня с собственным санузлом и местом под шкаф-купе — уголок комфорта и уединения
Детская комната — светлая, уютная и функциональная. Достаточно места для игр, учёбы и отдыха, чтобы ребёнок чувствовал себя комфортно
Отдельный санузел с местом под стиральную машину позволяет разместить всё необходимое для утреннего бодрящего душа
Просторный холл с продуманной системой хранения помогает организовать порядок без лишних усилий и загромождения пространства











