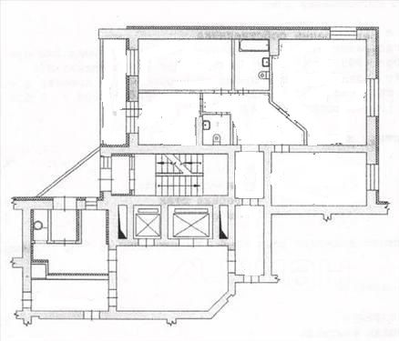
Объект N 196782. Объект N 196782. Сдается светлая, видовая, трёхкомнатная квартира площадью 92 м2 (жилая — 59 м2). Квартира расположена в 14-этажной секции 16-этажного дома — над квартирой технический этаж, поэтому соседей сверху нет и только 1 стена из одной комнаты граничит с тихими соседями.
Планировка: - Окна выходят на три стороны — квартира очень светлая и с хорошей вентиляцией. - Гостиная — 28 м2, просторная, видовая, с балконом, окна на 2 стороны с рабочим местом. Раскладной диван и кресло. - Спальня — 15,1 м2 с большим гардеробным шкафом. - Детская / кабинет — 16,4 м2 (универсальный дизайн, можно использовать под рабочий кабинет). Раскладное кресло. - Кухня 10 м2, пол с подогревом, встроенная техника AEG.
Объект N 196782. Объект N 196782. Сдается светлая, видовая, трёхкомнатная квартира площадью 92 м2 (жилая — 59 м2). Квартира расположена в 14-этажной секции 16-этажного дома — над квартирой технический этаж, поэтому соседей сверху нет и только 1 стена из одной комнаты граничит с тихими соседями.
Планировка: - Окна выходят на три стороны — квартира очень светлая и с хорошей вентиляцией. - Гостиная — 28 м2, просторная, видовая, с балконом, окна на 2 стороны с рабочим местом. Раскладной диван и кресло. - Спальня — 15,1 м2 с большим гардеробным шкафом. - Детская / кабинет — 16,4 м2 (универсальный дизайн, можно использовать под рабочий кабинет). Раскладное кресло. - Кухня 10 м2, пол с подогревом, встроенная техника AEG. - Два санузла с теплыми полами, один — почти 9 м2, бойлер на 50 л, стиральная машина Bosch.
Телевизоры в гостиной, спальне и на кухне. Паркет по всей квартире. Полностью обновлён текстиль: шторы, тюль, покрывала, пледы, подушки, ковры. В квартире предусмотрено большое количество мест для хранения.
Инфраструктура: - Рядом парк Зелёная Роща, школы, детские сады. - 11 минут до станции Метро ''Чкаловская''. - У дома собственная парковка.